二层的别墅就能住的很好,三层四层的需要很多钱,不如建一套适合自己的农村别墅。今天小编给大家推荐的是="://www.lemeizhai.com/Picture.asp?PicClassID=88" target="_self">欧式二层农村自建房,这套别墅非常漂亮,蓝色的屋顶和浅色墙体很是精美,在农村建一套这样的房子绝对不亏。一层进门就是客厅室内分区实用,厨房餐厅的设计非常实用,二层是挑空客厅,别墅造价不超过50万
效果图:




别墅层数: 二层
别墅风格: 欧式
占地面积:158㎡
开 间:14m
进 深:11.3m
建筑占地:14m×11.3m
建筑面积:238㎡
主体造价:35.0~40.0万
建筑结构:砖混结构
效果图:




主体设计:

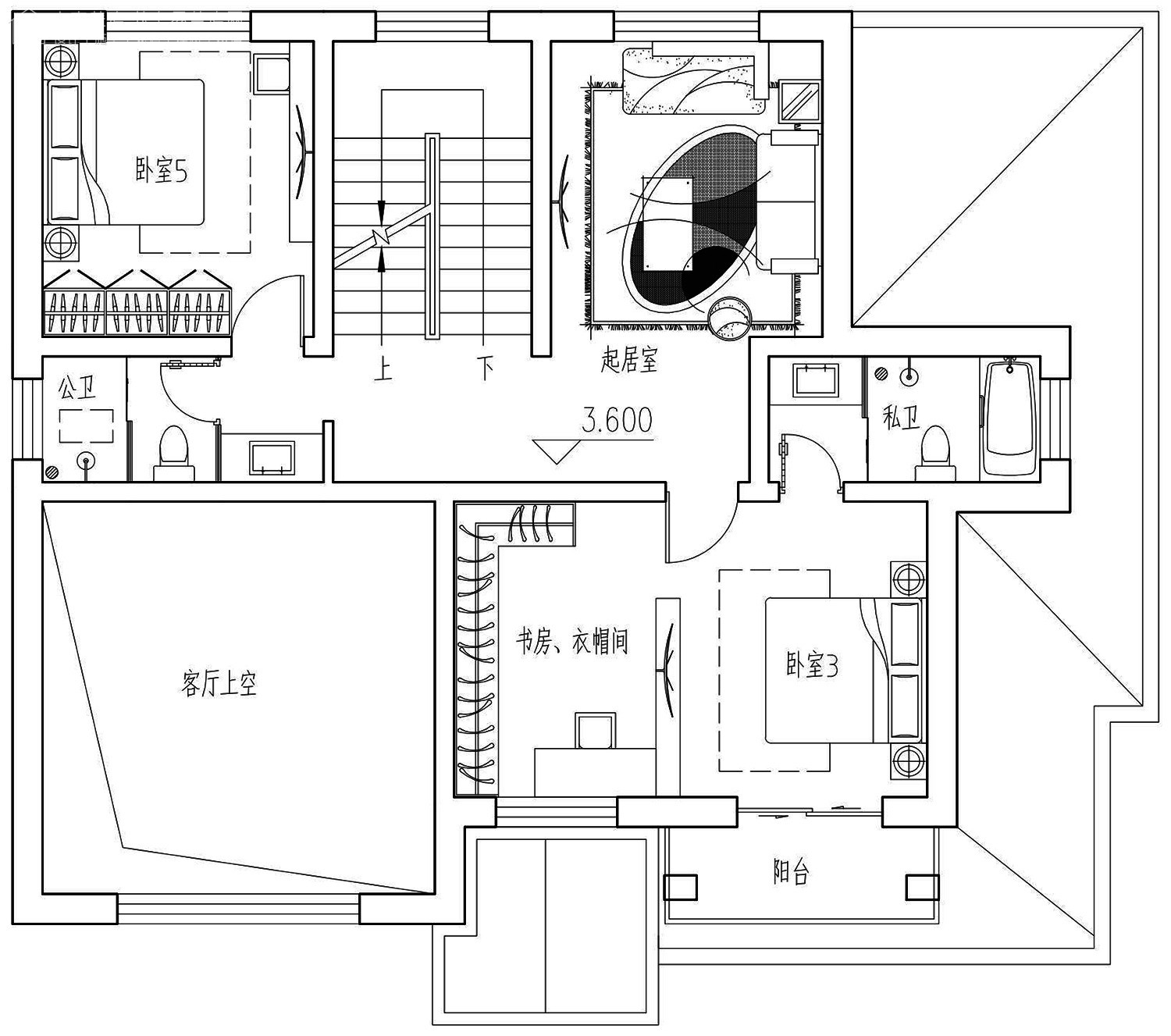
客厅、餐厅、厨房、卧室、公卫、阳台、露台。

。
转载请注明出自轩鼎自建房:://www.lemeizhai.com/