双拼别墅优点多多,合建花的钱要少一半,跟父母住还能更好的照顾父母,跟兄弟住在已经也能增进感情。今天给大家推荐一款安徽明总私人订制的="://www.lemeizhai.com/search.asp?SearchType=Software&imageField.x=34&imageField.y=24&SearchKey=%D0%C2%D6%D0%CA%BD" target="_self">新中式别墅设计是一款不错的双拼别墅,典型的白墙黑瓦很贴合中国人的气质,这套别墅是砖混结构有堂屋空间大,别墅的卧室不少,适合人口多的家庭居住,在农村建一套这样的房子绝对不吃亏。别墅造价最高不超过80万
效果图:

别墅层数: 三层
别墅风格: 中式
占地面积:155㎡
开 间:17.5m
进 深:8.9m
建筑占地:17.5m×8.9m
建筑面积:426㎡
主体造价:72.0~77.0万
建筑结构:砖混结构
效果图:



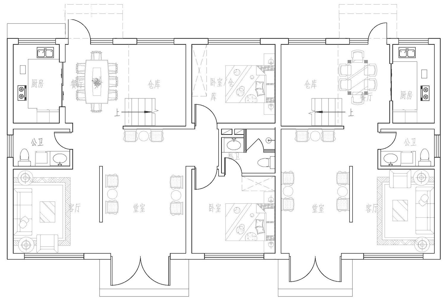
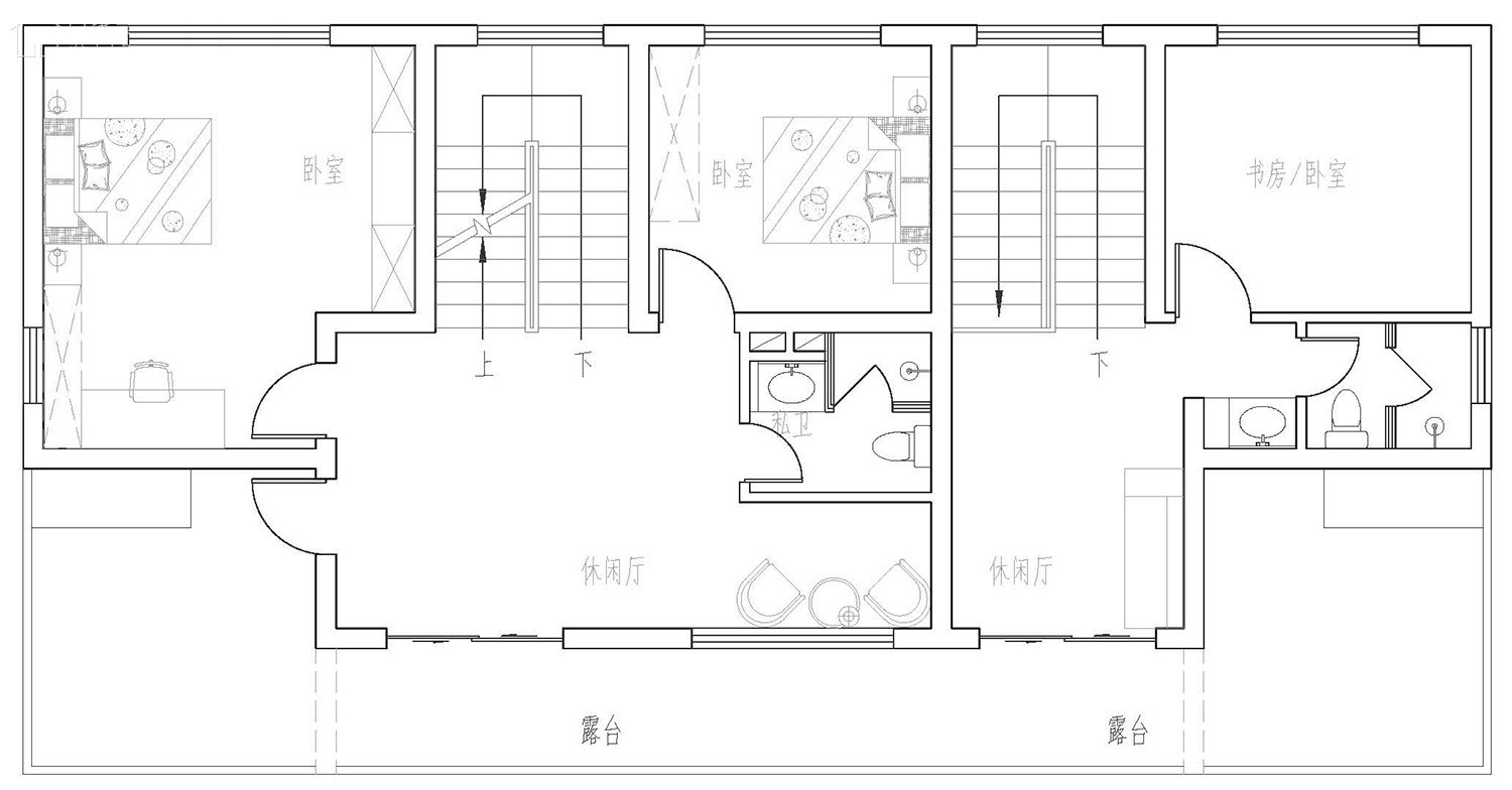
主体设计:

客厅、餐厅、厨房、卧室、公卫、阳台、露台。

。

转载请注明出自轩鼎自建房:://www.lemeizhai.com/