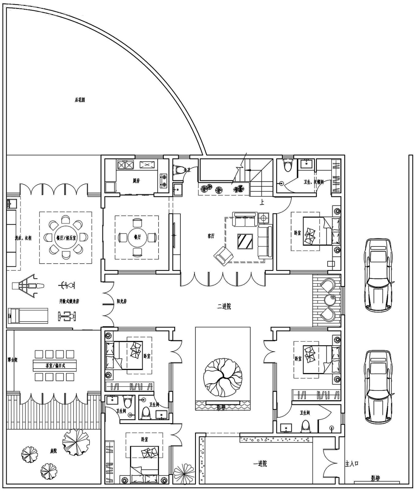
家住山东的杨先生非常喜欢中式风格的建筑,下定了决心让自己也住上这样的房子,在网上找到了我们轩鼎房屋图纸网,设计师刘工给杨先生设计了一款二进院的="://www.lemeizhai.com/search.asp?SearchType=Software&imageField.x=22&imageField.y=19&SearchKey=%D0%C2%D6%D0%CA%BD" target="_self">中式农村自建房,这套房子很漂亮青砖黑瓦韵味十足有种四合院的样子,东屋和西屋是卧室,北屋是给父母住的,客厅厨房都在北屋。房屋左侧是露天茶台和阳光房还有洗衣房很实用,最高造价50万左右
效果图:


别墅层数: 二层
别墅风格: 中式
占地面积:318㎡
开 间:18.1m
进 深:17.6m
建筑占地:18.1m×17.6m
建筑面积:286㎡
主体造价:45.0~50.0万
建筑结构:砖混结构
效果图:



主体设计:

客厅、餐厅、厨房、卧室、公卫、阳台、露台。

。
转载请注明出自轩鼎自建房:://www.lemeizhai.com/