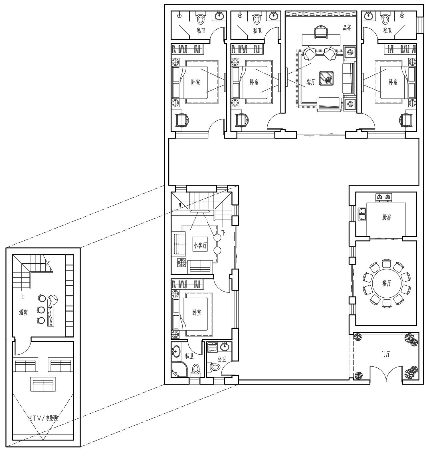
一层的新式农村自建房还是很实用的,农村建一套新式的自建房不仅不输二层小别墅,而且还比二层的舒服。今天给大家推荐的是家住河北的胡先生私人订制的一款="://www.lemeizhai.com/search.asp?SearchType=Software&imageField.x=54&imageField.y=21&SearchKey=%D0%C2%D6%D0%CA%BD" target="_self">新中式农村自建房,这套房子很实用而且还漂亮好看,有地下酒窖厨房餐厅在东屋,院子宽敞适合晾晒粮食,和父母一起住也不嫌房子少。这套房子的造价不低主体不超过40万。
效果图:


别墅层数: 一层
别墅风格: 中式
占地面积:282㎡
开 间:13.8m
进 深:20.5m
建筑占地:13.8m×20.5m
建筑面积:234㎡
主体造价:33.0~38.0万
建筑结构:砖混结构
效果图:




主体设计:
客厅、餐厅、厨房、卧室、公卫、阳台、露台。

。
转载请注明出自轩鼎自建房:://www.lemeizhai.com/