一直有小伙伴私信小编让我推荐一款小户型的农村别墅房屋设计图,下图这款从效果图上看明显比我们以往看到的占地都要小很多,但是它身材修长伟岸,表面干净利落。站在三层的阳台上眺望全村,一定会有一种一览众山小的感觉。

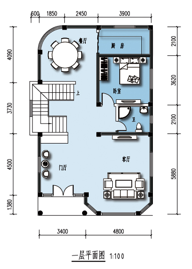
一楼的屋内布置还是挺讲究的,有门厅和挑空的大客厅,一看业主也是追求品质的人 ,虽然占地小,但是客厅落地窗也不能落下,屋内的光线是非常好的。除此之外是厨房、餐厅 、一间卧室和卫生间的布局设计。

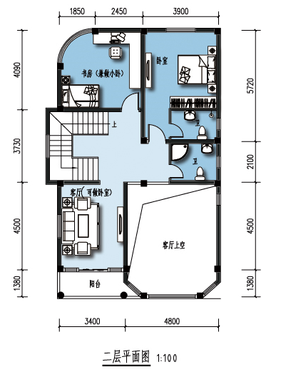
二楼一间带卫生间的主卧和客厅,书房和一个公共卫生间。客厅和书房都可用作卧室。刚开始看是不是觉得这么小的户型可以干什么呢?小编介绍了它的室内房屋设计布局后,有没有很惊讶这么小的占地空间,却大有不同。顿时让人有种有身份的感觉,甚至高兴了还可以将客厅改成影视放映厅。

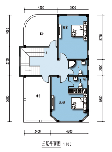
三楼一间带卫生间的大主卧和一间次卧,还有一个公共卫生间。这样住着是很方便的,卫生间也足够用量,不用担心早晚家人挤厕所。此外,两个大露台,视线非常好。在农村,空气环境非常的好,在露台上看书喝茶都是种享受。相对来说,农村是多么的富有!

今天这栋8.2m宽农村三层房屋设计图,虽然占地小,但是空间利用合理率高,一家人住进去也舒适。