今天我们来看一套漂亮欧式乡下二层房屋设计。如下图所示,乍一看,绿植、庭院和洋房,感觉是不是很惊艳很时尚?可是你能猜到在这栋外表亮丽的别墅里还设计有柴火房吗?惊不惊喜,意不意外?

如图所示,进入玄关,右手是客厅,左手是餐厅。最右边设计了老人房,老人房靠南,使室内阳光充足,对老人的身体有好处,而且和客厅隔开,保证了老人卧室的安静。这次还给老人房设计了独立无障碍的套内卫生间,老人用起来也比较方便。除此之外,一层最大的亮点就是位于厨房后面的柴火房了。柴火房独立于房屋主体,由后门进入,烧柴时不会有灰尘进入室内,而且冬天还可以为室内供暖,真是太棒了。

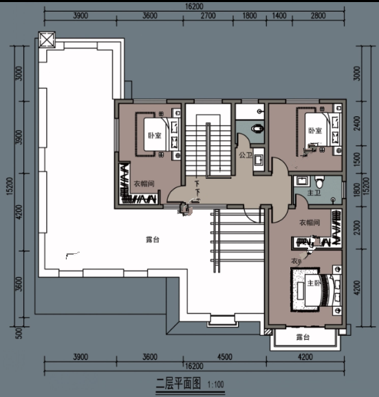
上到二层,我们看到最大的亮点就是有室外大大的露台,这样的设计既保证了坡屋顶别墅的美观,又提供了在二层屋顶晒粮食的实用性 ,不得不说这个设计真是太赞了。二层的三个卧室连同一层的两个卧室,一般情况下一家人住完全没有问题的。

这栋农村欧式乡下二层房屋设计图,一般北方农村家庭的宅基地差不多都可以建造,并且还有富余的院子面积用来种植花草和停放汽车。柴火灶做饭就是好吃,让人一辈子念念不忘,是你喜欢的户型设计吗?