今日推荐的这款农村二层小别墅楼房,但从外观看,是不是感觉有点小,其实它的尺寸还是蛮大的,整个别墅占地13.7米*11米,另外还有前院和后院,孩子们很大的地盘玩耍,住起来也是相当舒服。这种白色墙,永远都是不过时的,配色浅褐色的木框,调色的搭配设计,格外的好看。

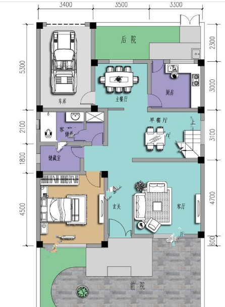
一层平面图,在后院还设计了车库的位置,一楼客厅和卧室都朝南,阳光充足,很亮堂,冬天阳光晒进来,也是很暖和的。此外还设计了厨房,主餐厅和早餐厅,客用卫生间和储藏室,可以说这个设计的品质是非常高的,也是很用心的。

二层设计了主卧客卧,还有儿童房,学习室,为家里孩子健康成长,热爱学习营造了很好的环境。除此之外,还有小吧台和小客厅,累了也能好好享受下。

这栋农村小别墅户型的设计真是很不错,有院子,有车库,孩子学习玩耍的地方,也有大人休息放松的地方,真正让人体会到了家是温暖的避风港湾。