中国有钱人住别墅,而日本一般人住别墅,你别不信这是真的。日本国情和我们不一样,所以他们住房也跟我们不一样。今天给大家推荐一款日本客户私人订制的现代="://www.lemeizhai.com/Picture.asp?PicClassID=88" target="_self">二层别墅设计,这款别墅和日本人租住的别墅一样,这款别墅是日本客户用来出租的,进门就是客厅,房屋主体比较狭长,说不定未来人类住的房子都这样了。
效果图:

别墅层数: 二层半
别墅风格: 现代
占地面积:71㎡
开 间:6.1m
进 深:11.8m
建筑占地:6.1m×11.8m
建筑面积:164.71㎡
主体造价:16.0~21.0万
建筑结构:砖混结构
效果图:


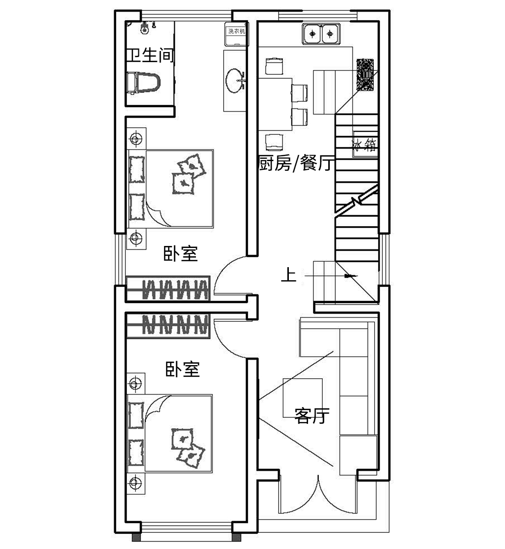
主体设计:

客厅、餐厅、厨房、卧室、公卫、阳台、露台。

。
转载请注明出自轩鼎自建房:://www.lemeizhai.com/