农村的宅基面宽小的朋友可以建一款这样的别墅,这是一款现代风格的="://www.lemeizhai.com/Picture.asp?PicClassID=94" target="_self">四层别墅设计,时尚的外表极高的颜值,农村建一栋绝对引人注目!农村建房比漂亮外表的更重要的是室内布局舒适性,就拿这款别墅的第一层说起,进门旁边是客厅,卧室专门给老人设计,厨房在北部餐厅和厨房一起,这样的设计保障了空间,住起来非常舒适。

效果图:

别墅层数: 四层
别墅风格: 现代
占地面积:118㎡
开 间:8m
进 深:14.8m
建筑占地:8m×14.8m
建筑面积:527.83㎡
主体造价:63.0~68.0万
建筑结构:框架结构
效果图:


主体设计:。

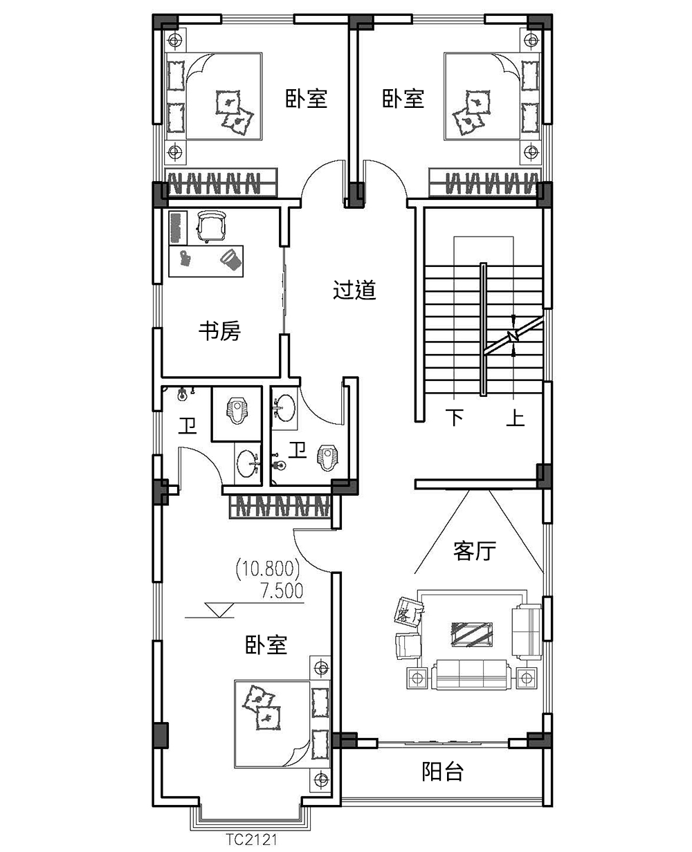
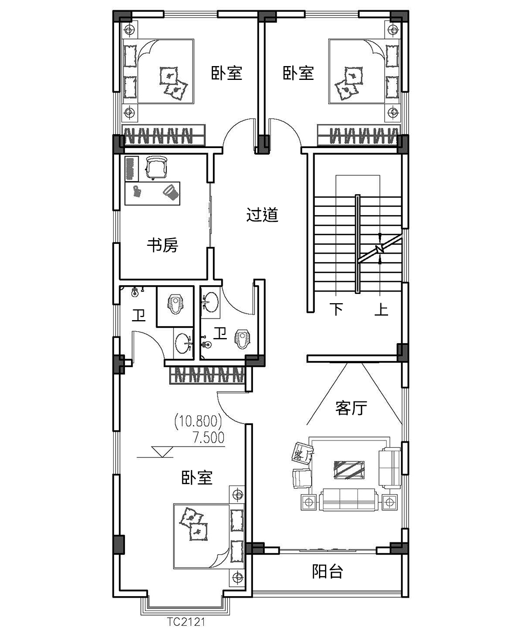
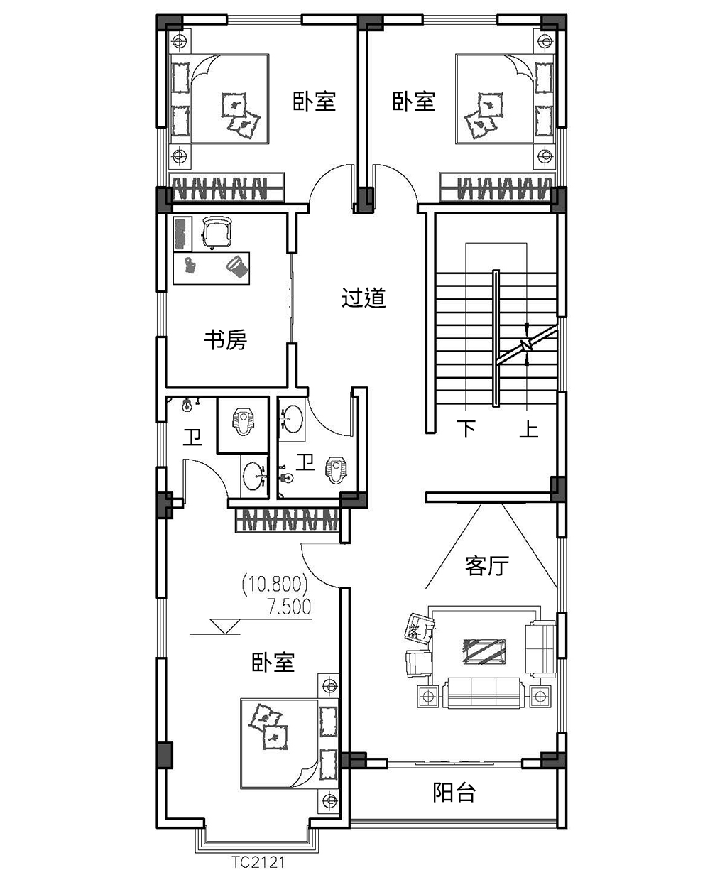
客厅、餐厅、厨房、卧室、公卫、阳台、露台。



。
转载请注明出自轩鼎自建房:://www.lemeizhai.com/