家住海南岛李先生定制了一款现代风格的="://www.lemeizhai.com/Picture.asp?PicClassID=88" target="_self">农村二层自建别墅,这套别墅时尚漂亮很适合海南的气侯,属于休闲型农村自建房,这别墅造价只需最高35.8万,露台车库样样不缺,户型紧凑设计合理。大窗口设计采光好,露台的面积也超大,设计最好的是二层,居住区很紧凑,阳台起居室书房都不缺,空间还很好,露台虽大保留的室内空间并不小。

效果图:

别墅层数: 二层
别墅风格: 现代
占地面积:140㎡
开 间:11.4m
进 深:12.3m
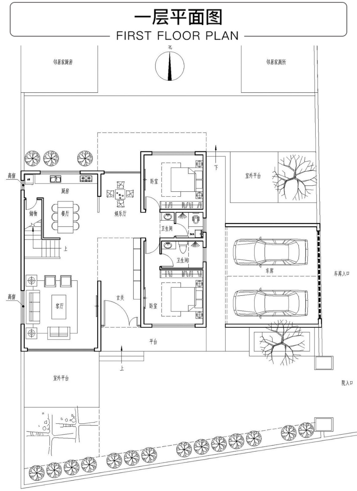
建筑占地:11.4m×12.3m
建筑面积:224㎡
主体造价:30.8~35.8万
建筑结构:砖混结构
效果图:



主体设计:

客厅、餐厅、厨房、卧室、公卫、阳台、起居室、衣帽间、书房、露台。

。
转载请注明出自轩鼎自建房:://www.lemeizhai.com/