实行新农村建设的地区,对于建房是有补贴的。但各地情况不同需要到当地政府官网查询,是否有文件明确实行新农村建设,而且,各地情况不同可能会有差异。新农村房屋建设是有标准的,符合标准的才有补贴。中央一号文件提出,把支持农民建房作为扩大内需的重大举措,采取有效措施推动建材下乡,鼓励有条件的地方通过多种形式支持农民依法依规建设自用住房。鼓励农村金融机构对农民建房提供消费信贷。
效果图:

别墅层数: 二层
别墅风格: 欧式
占地面积:89㎡
开 间:10.7m
进 深:8.4m
建筑占地:10.7m×8.4m
建筑面积:215.47㎡
主体造价:27.0~32.0万
建筑结构:框架结构
效果图:




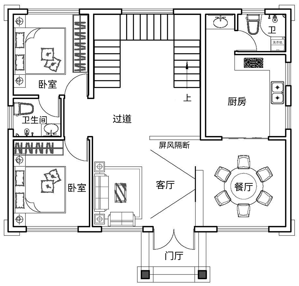
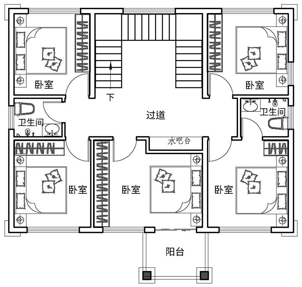
主体设计:
客厅、餐厅、厨房、卧室、公卫、阳台、露台。
。
转载请注明出自轩鼎自建房:://www.lemeizhai.com/