农村经济实惠型二层小别墅
自建房屋,既能根据个人喜好设计房屋,房子也足够宽敞,与商品房相比,成本低了很多。越来越多的人选择回农村盖自建小别墅,居住舒适。
合家欢乐,欢聚一堂,是我们每个家庭都想要的。我们说的这个欢聚一堂的‘堂’换一个角度讲也可以说就是房子。在我们农村,很多人都想有一套大气又实惠的房子却又不得其法,现在我就专门为大家设计了一套适合我们乡村建设的经济实惠二层小别墅供大家参考。
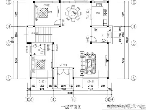
本户型为二层乡村小别墅设计方案,带车库,本套图纸的布局紧凑,空间利用率高,别墅外观小巧中透着大气,占地面积153平方米,真是一个十分富有田园气息的称心小别墅。





本户型为二层乡村小别墅设计方案,带车库,本套图纸的布局紧凑,空间利用率高,别墅外观小巧中透着大气,占地面积153平方米,真是一个10万富有田园气息的称心小别墅。
一层设有车库,宽阔的客厅餐厅,并设有一间卧室,厨房以及洗手间。
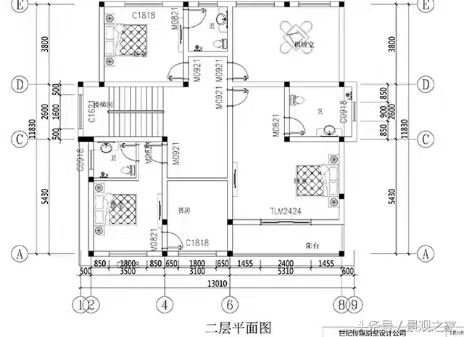
二层布局较为紧凑,四间卧室,书房以及起居室。
有这么一套走心又实惠的房子,可以天天欢聚一堂了。