农村盖别墅到底要花多少钱,这估计是每一个人最关心的问题。贵的不一定是好的,适合自己的才是最好的,即使不是金窝银窝,但只要户型环境足够好,即使是一层小别墅,仍称得上气派够档次。从我们往日的建房案例来看,一栋二层的砖混结构房屋,主体建成要花30/40万左右。但有时预算会不够,那么有没有十几、二十万就能盖的户型呢?那下面介绍的这款房子应该能满足你的需要。





米色瓷砖外墙搭配红色瓦屋面,简单大方,平层加小院的居住形式给我们带来极其开阔的视线以及舒适的居住体验。
院子十分宽敞适合在院内晾晒粮食载种蔬菜停靠车辆。
旁边还有入户车库设计,不仅方便停车,平时也可堆放农村的杂物,比较实用。

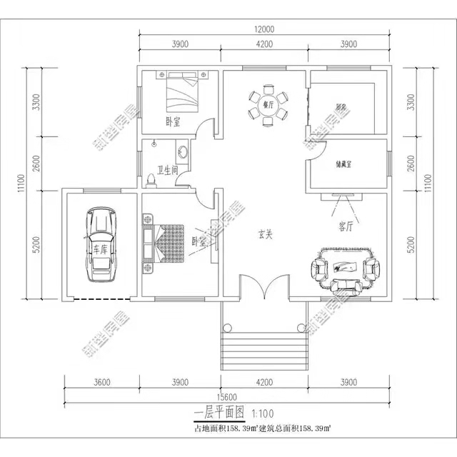
麻雀虽小五脏俱全,即使是外观小巧精致的小别墅,室内布置一应俱全。室内布局上设置玄关、客厅、厨房、餐厅、卧室、车库还有卫生间,一应俱全,是一栋小而全的小户型。非常适合一家三口或者小家庭居住,卫生打扫以及房屋设计非常便利。
一栋这样的别墅,毛坯造价16万,怎么样是不是很划算呢,你有没有心动呢?