别墅设计,别墅房屋外形与屋内装修来看这一套。
漂亮的别墅
咱们这款别墅,整体房型从正面看为长方形。还采用了大落地窗。较长的房型与通透的落地窗相结合,更显房屋的宽阔与敞亮。有寓意房屋主人未来之路宽阔明亮之意。

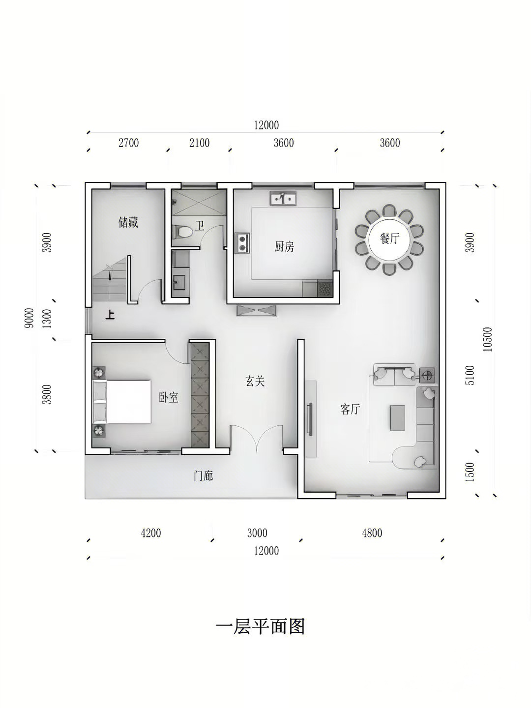
· 第一层
一层布局紧凑而实用。
1. 门廊与玄关相连,方便迎接客人与换下鞋衣。
2. 宽敞的客厅,为人们准备了共同活动的空间。
3. 厨房与餐厅相连,方便用餐和烹饪。
4. 一间卧室位于一层,可用作客房。对面还设置一个卫生间,更加方便。
5. 储藏室则增加了储物功能。

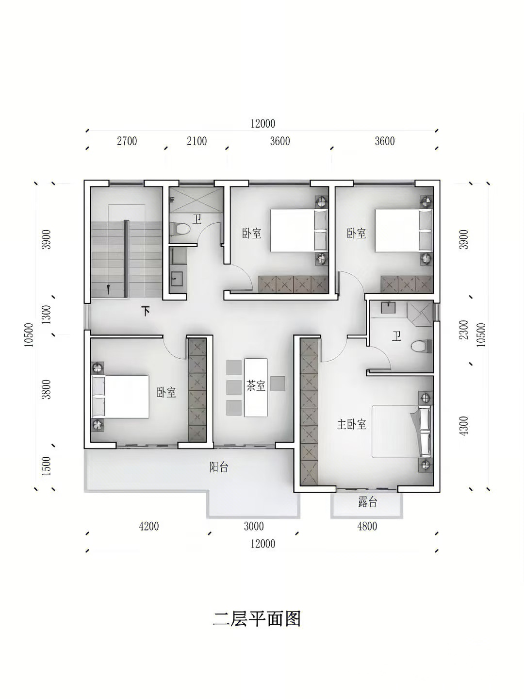
· 第二层
二层主要是家庭成员休息区
1. 主卧室的独立卫生间设计提高了居住的私密性和舒适度。
2. 茶室为家庭提供了一个休闲放松的空间。
3. 阳台则增加了室内外的互动,提供了良好的视野和采光。
整栋别墅的设计注重功能性和舒适性,非常适合多人家庭居住。
转载请注明出自="://www.lemeizhai.com/">别墅设计-乡村房子设计图-农村自建房设计图-轩鼎房屋图纸网