您好,欢迎访问轩鼎房屋图纸网,轩鼎建筑为您提供新农村房屋设计图、别墅设计图纸以及别墅定制设计与咨询服务。
 
 
  热门搜索:自建房 别墅设计 房屋设计图   
网站首页 图纸大全 定制设计 作品展示 建房图文 联系我们
一层房屋图纸
二层房屋图纸
三层房屋图纸
四层以上图纸
双拼房屋图纸
其他建筑图纸
 
 
 您的位置:首页 ->> 建房图文 ->> ​现代乡村自建房:内外兼修的诗意居所
 
 

​现代乡村自建房:内外兼修的诗意居所

发布时间:2025/6/14 17:17:02 点击数: 187次 

现代乡村自建房:内外兼修的诗意居所

          在乡村自建房设计中,这栋现代风格住宅展现出独特魅力,实现室内外设计的和谐统一。

· 外观设计

从外观来看,简洁的白色立面搭配深灰色屋顶,线条利落,既有现代建筑的时尚感,又融入乡村的质朴氛围。大面积玻璃窗引入充足光线,打破室内外边界,让自然景色成为建筑的动态背景。小露台与观景阳台的设置,为居者提供亲近户外、俯瞰庭院的空间,清晨赏朝露,傍晚观落日,将乡村景致纳入日常。


图片1.jpg 

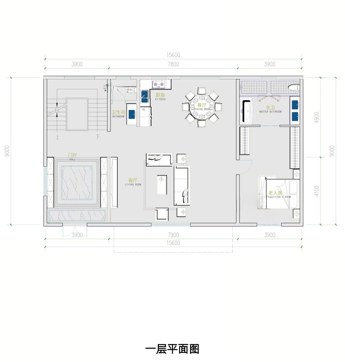
· 室内设计一层

室内一层布局强调开放性与功能性。客厅、餐厅、厨房连贯一体,营造通透宽敞的公共空间,方便家人互动交流。老人房临近主卫,考虑到长辈起居便利性,体现人文关怀。


图片2.jpg 

· 室内设计二层

二层则侧重私密与舒适,主卧配套衣帽间,次卧温馨实用,休闲区可作为阅读、观景之所,观景阳台延伸空间,让自然风与阳光肆意流淌。


图片3.jpg 

          整体设计以融合为核,外观呼应乡村环境,用简约形态诠释现代审美;室内依据生活场景,划分动静区域,满足家庭多元需求。从外到内,从公共到私密,每一处细节都在构建可观、可居、可游的乡村生活空间,让自建房不仅是遮风挡雨的容器,更是承载诗意与温情的心灵归处。

转载请注明出自="://www.lemeizhai.com/">别墅设计-乡村房子设计图-农村自建房设计图-轩鼎房屋图纸网

 
· 台上盆和台下盆哪个好 (台上盆和...
· 房屋设计:勾勒生活的诗意轮廓
· 在乡下建造这样一款别墅,日子红...
· 现代风格的别墅,气质真滴杠杠的...
· 可以做商铺的中式别墅,特别有韵...
· 推荐3套新农村设三层自建别墅设...
· 农村自建房屋有了庭院和风景,生...
· 框架结构
  关于我们 网站事务 帮助中心
客服热线:400-079-6579
客服QQ:10928711 10928755 10928799
地址:山东省潍坊财富大厦1801
 

预定须知
顾客必读
配送方式

 


Copyright 2016 www.lemeizhai.com All Rights Reserved ICP备案序号:鲁ICP备2026012448号-1
轩鼎房屋图纸 电 话:0536-3385581 3385582 传 真:0536-3385581 地 址:山东省潍坊财富大厦1801


keywords:房屋设计图 房屋设计图 农村房屋设计图 农村房屋设计图 建房图文