您好,欢迎访问轩鼎房屋图纸网,轩鼎建筑为您提供新农村房屋设计图、别墅设计图纸以及别墅定制设计与咨询服务。
 
 
  热门搜索:自建房 别墅设计 房屋设计图   
网站首页 图纸大全 定制设计 作品展示 建房图文 联系我们
一层房屋图纸
二层房屋图纸
三层房屋图纸
四层以上图纸
双拼房屋图纸
其他建筑图纸
 
 
 您的位置:首页 ->> 建房图文 ->> ​新中式别墅:传统与现代的空间对话
 
 

​新中式别墅:传统与现代的空间对话

发布时间:2025/6/18 14:37:09 点击数: 203次 

新中式别墅:传统与现代的空间对话

          这栋新中式别墅,以简洁流畅的线条、经典的色彩搭配,实现了室内外设计的巧妙融合,演绎出传统与现代交织的居住美学。

· 外观设计

          外观上,白色墙体质朴纯净,黑色瓦片、木质门窗点缀其间,勾勒出中式建筑的典雅轮廓。大面积玻璃的运用,打破传统建筑的封闭感,让室内外视野互通,阳光与自然景致可轻松渗透,既保留中式韵味,又契合现代对通透空间的追求。


图片1.jpg 

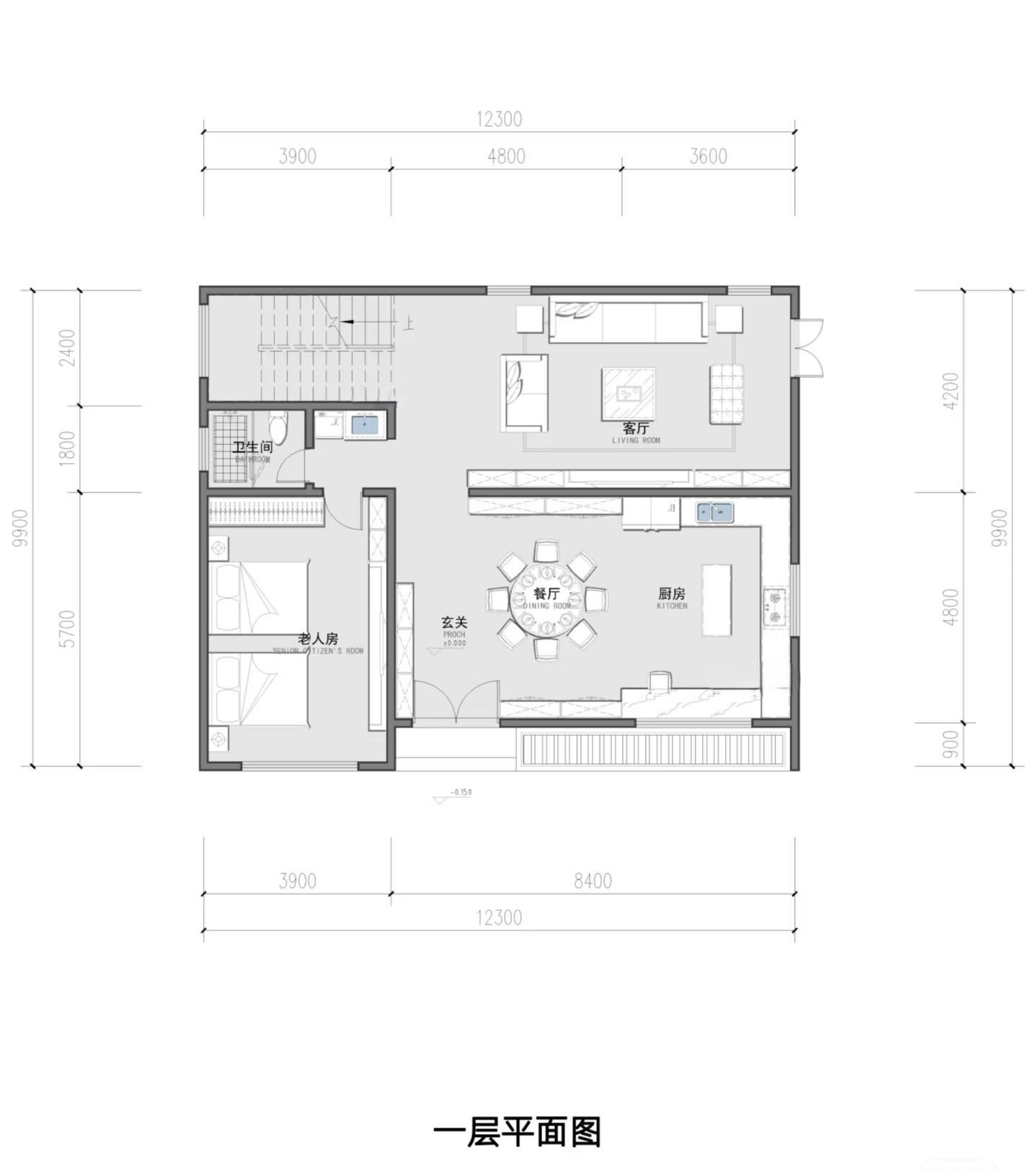
· 第一层

           一层空间布局,围绕生活烟火气展开。

1. 玄关作为过渡,自然衔接客厅、餐厅与老人房。

2. 开放式的公共区域,让家人互动无障碍,圆形餐桌呼应传统团聚理念,厨房紧邻餐厅,便捷实用。

3. 老人房独立一侧,配备专属卫浴,考量长者生活需求,尽显人文关怀。


图片2.jpg 

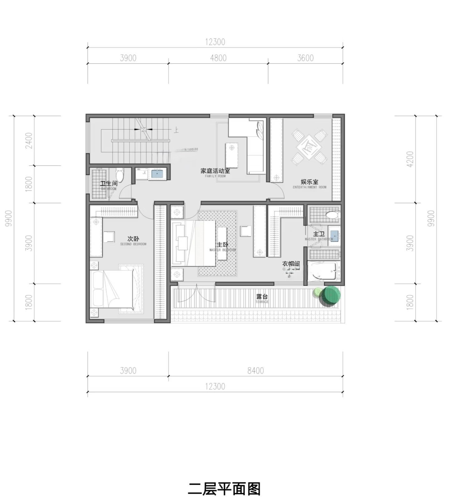
· 第二层

          二层则聚焦私密与休闲

1. 主卧套房设计,融合睡眠、衣帽间与主卫功能,露台延伸空间,可赏景休憩。

2. 次卧满足居住多样性。

3. 家庭活动室与娱乐室,为亲子互动、休闲娱乐提供场所,营造温馨家庭氛围。

4. 楼梯间的存在,不仅是垂直交通纽带,其通透设计也让空间层次更丰富,促进上下层视觉交流。


图片3.jpg 

          从外观传承中式基因,到室内依功能分区打造温馨场景,这栋别墅将传统建筑智慧与现代生活需求结合,让家成为承载情感、延续文化,又贴合当代生活节奏的美好容器,书写着新中式居住美学的独特篇章 

转载请注明出自="://www.lemeizhai.com/">别墅设计-乡村房子设计图-农村自建房设计图-轩鼎房屋图纸网

 
· 台上盆和台下盆哪个好 (台上盆和...
· 房屋设计:勾勒生活的诗意轮廓
· 在乡下建造这样一款别墅,日子红...
· 现代风格的别墅,气质真滴杠杠的...
· 可以做商铺的中式别墅,特别有韵...
· 推荐3套新农村设三层自建别墅设...
· 农村自建房屋有了庭院和风景,生...
· 框架结构
  关于我们 网站事务 帮助中心
客服热线:400-079-6579
客服QQ:10928711 10928755 10928799
地址:山东省潍坊财富大厦1801
 

预定须知
顾客必读
配送方式

 


Copyright 2016 www.lemeizhai.com All Rights Reserved ICP备案序号:鲁ICP备2026012448号-1
轩鼎房屋图纸 电 话:0536-3385581 3385582 传 真:0536-3385581 地 址:山东省潍坊财富大厦1801


keywords:房屋设计图 房屋设计图 农村房屋设计图 农村房屋设计图 建房图文