您好,欢迎访问轩鼎房屋图纸网,轩鼎建筑为您提供新农村房屋设计图、别墅设计图纸以及别墅定制设计与咨询服务。
 
 
  热门搜索:自建房 别墅设计 房屋设计图   
网站首页 图纸大全 定制设计 作品展示 建房图文 联系我们
一层房屋图纸
二层房屋图纸
三层房屋图纸
四层以上图纸
双拼房屋图纸
其他建筑图纸
 
 
 您的位置:首页 ->> 建房图文 ->> ​自建别墅:自然共生的乡野美宅设计
 
 

​自建别墅:自然共生的乡野美宅设计

发布时间:2025/6/29 13:50:23 点击数: 158次 

自建别墅:自然共生的乡野美宅设计

          在山水环抱间,这栋别墅以独特设计诠释自然栖居哲学,实现建筑与环境、功能与美学的深度融合。

· 外观设计借景造境的诗意表达

          别墅外观以简洁白色为基底,搭配深色屋顶与木质挑檐,在山间勾勒出典雅轮廓。拱形窗与柱式门廊,融合古典韵味与现代简约,成为框住山景的天然画框。阳台与露台的花卉绿植,如自然垂帘,让建筑从环境中生长而出,清晨迎山雾,日暮揽余晖,将山水诗意纳入日常。


图片5.jpg 

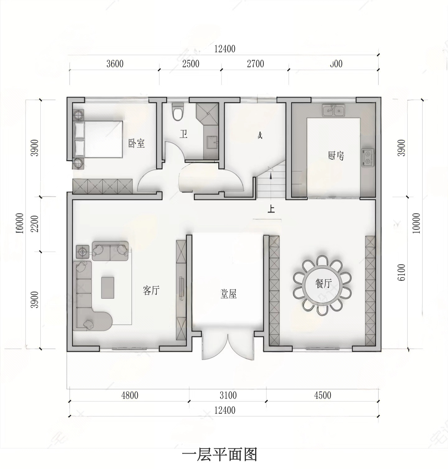
· 第一层传统与现代的空间对话

           一层布局融入 “堂屋” 传统元素,成为家庭精神与社交核心。客厅连通堂屋,构建开阔共享区,满足团聚、会客需求;餐厅紧邻厨房,圆形餐桌呼应传统用餐仪式,落地窗引入山林景色,让每一餐都伴自然风味;卧室靠近公共区,方便长辈起居,卫生间合理配置,保障生活流线顺畅,传统与现代功能在此和谐共生。


图片6.png 

· 第二层私密与观景的居住美学

           二层聚焦居住私密性与观景体验。主卧套房带独立卫浴,露台延伸空间,晨起观山、入夜赏月,赋予休憩时光浪漫氛围;次卧配置齐全,满足家人或访客居住需求;衣帽间与公共活动区结合,兼顾收纳与休闲,楼梯串联上下,动线清晰,让私密空间与自然景观持续互动。


图片7.png 

          从借景入境的外观设计,到传统现代交融的空间布局,这栋别墅将山水基因植入建筑肌理,以细腻设计回应自然与生活需求,打造出既承载乡土情怀,又适配现代生活的理想居所,为乡野建筑设计提供了自然共生的鲜活范本 

转载请注明出自="://www.lemeizhai.com/">别墅设计-乡村房子设计图-农村自建房设计图-轩鼎房屋图纸网

 
· 台上盆和台下盆哪个好 (台上盆和...
· 房屋设计:勾勒生活的诗意轮廓
· 在乡下建造这样一款别墅,日子红...
· 现代风格的别墅,气质真滴杠杠的...
· 可以做商铺的中式别墅,特别有韵...
· 推荐3套新农村设三层自建别墅设...
· 农村自建房屋有了庭院和风景,生...
· 框架结构
  关于我们 网站事务 帮助中心
客服热线:400-079-6579
客服QQ:10928711 10928755 10928799
地址:山东省潍坊财富大厦1801
 

预定须知
顾客必读
配送方式

 


Copyright 2016 www.lemeizhai.com All Rights Reserved ICP备案序号:鲁ICP备2026012448号-1
轩鼎房屋图纸 电 话:0536-3385581 3385582 传 真:0536-3385581 地 址:山东省潍坊财富大厦1801


keywords:房屋设计图 房屋设计图 农村房屋设计图 农村房屋设计图 建房图文