您好,欢迎访问轩鼎房屋图纸网,轩鼎建筑为您提供新农村房屋设计图、别墅设计图纸以及别墅定制设计与咨询服务。
 
 
  热门搜索:自建房 别墅设计 房屋设计图   
网站首页 图纸大全 定制设计 作品展示 建房图文 联系我们
一层房屋图纸
二层房屋图纸
三层房屋图纸
四层以上图纸
双拼房屋图纸
其他建筑图纸
 
 
 您的位置:首页 ->> 建房图文 ->> ​新中式乡村别墅:自然与生活完美融合的房屋设计
 
 

​新中式乡村别墅:自然与生活完美融合的房屋设计

发布时间:2025/7/3 14:00:13 点击数: 241次 

新中式乡村别墅:自然与生活完美融合的房屋设计

          在乡村土地上,这栋新中式别墅以独特设计,诠释着自然与生活的完美融合,成为乡村人居的理想范本。

· 外观设计

          外观上,别墅以白色为主调,搭配深灰瓦顶与原木色装饰,简约中透着中式韵味。弧形门廊、拱形窗,柔化建筑线条,门前石材基座、盆栽花卉,让建筑扎根自然。二层露台布置休闲桌椅与遮阳伞,将乡村美景纳入日常,打造惬意户外空间。


图片8.png 

· 第一层

          一层空间,是家庭生活的核心区。

1. 玄关衔接内外,客厅、餐厅通透相连,动线流畅。

2. 双主卧设计,方便长辈居住,紧邻卫浴,考量起居便捷。

3. 厨房布局合理,与餐厅呼应,烟火气中藏着家的温暖,推门见庭院绿植,让烹饪也成享受。


图片9.png 

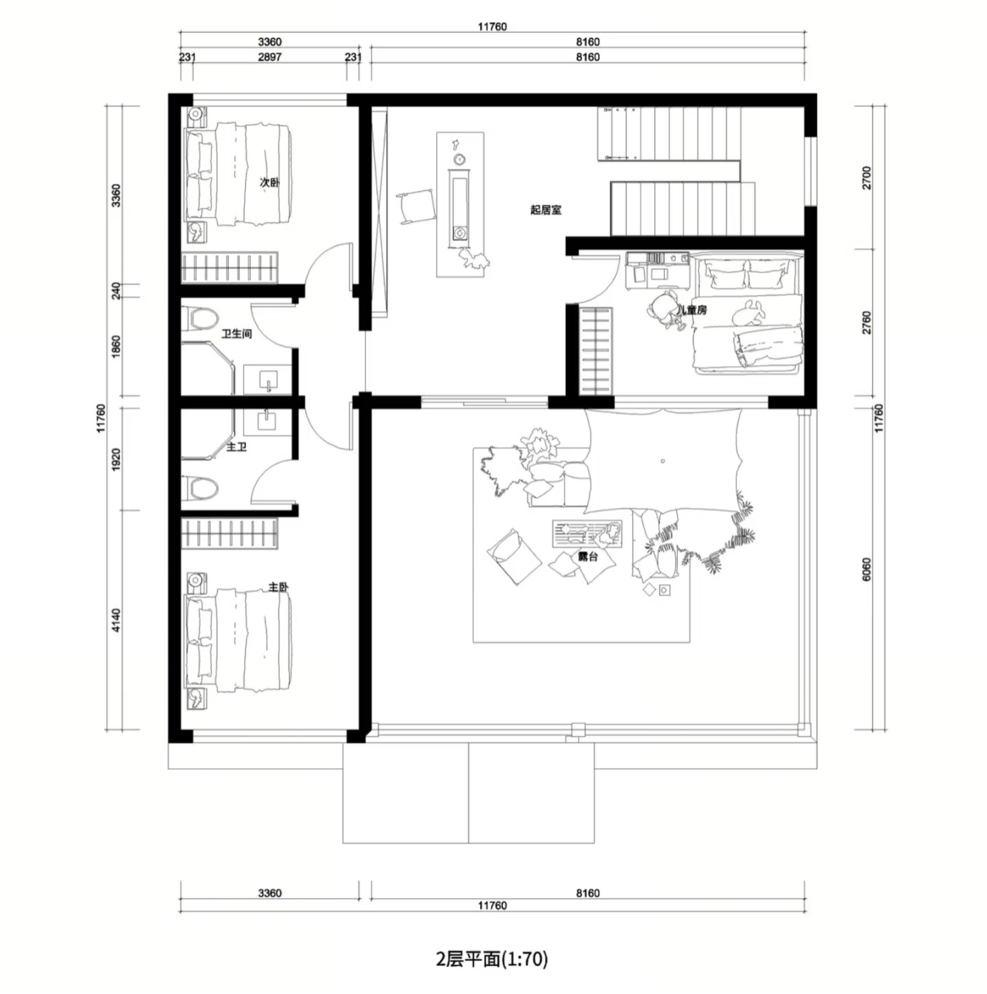
· 第二层

          二层则是多元生活场域。

1. 卧室满足居住需求,起居室为休闲交流留白,露台拓展空间,晨起看田野晨光,暮落观乡村晚霞,重拾与自然亲近的本真。

2. 空间规划兼顾私密与共享,让家人既各有天地,又能随时相聚。


图片10.png 

          从外到内,这栋别墅将新中式美学与乡村生活融合,用建筑语言诉说对自然的尊重、对家庭的关怀。它不仅是乡村居所的升级,更是一种生活方式的重塑,让乡村生活既有传统韵味,又具现代舒适,在自然怀抱中,书写家的温馨故事 

转载请注明出自="://www.lemeizhai.com/">别墅设计-乡村房子设计图-农村自建房设计图-轩鼎房屋图纸网

 
· 台上盆和台下盆哪个好 (台上盆和...
· 房屋设计:勾勒生活的诗意轮廓
· 在乡下建造这样一款别墅,日子红...
· 现代风格的别墅,气质真滴杠杠的...
· 可以做商铺的中式别墅,特别有韵...
· 推荐3套新农村设三层自建别墅设...
· 农村自建房屋有了庭院和风景,生...
· 框架结构
  关于我们 网站事务 帮助中心
客服热线:400-079-6579
客服QQ:10928711 10928755 10928799
地址:山东省潍坊财富大厦1801
 

预定须知
顾客必读
配送方式

 


Copyright 2016 www.lemeizhai.com All Rights Reserved ICP备案序号:鲁ICP备2026012448号-1
轩鼎房屋图纸 电 话:0536-3385581 3385582 传 真:0536-3385581 地 址:山东省潍坊财富大厦1801


keywords:房屋设计图 房屋设计图 农村房屋设计图 农村房屋设计图 建房图文