您好,欢迎访问轩鼎房屋图纸网,轩鼎建筑为您提供新农村房屋设计图、别墅设计图纸以及别墅定制设计与咨询服务。
 
 
  热门搜索:自建房 别墅设计 房屋设计图   
网站首页 图纸大全 定制设计 作品展示 建房图文 联系我们
一层房屋图纸
二层房屋图纸
三层房屋图纸
四层以上图纸
双拼房屋图纸
其他建筑图纸
 
 
 您的位置:首页 ->> 建房图文 ->> 农村自建别墅:领略二层住宅设计的独特魅力
 
 

农村自建别墅:领略二层住宅设计的独特魅力

发布时间:2025/7/14 19:12:23 点击数: 108次 

农村自建别墅:领略二层住宅设计的独特魅力。

         在现代住宅设计中,室内外的和谐统一是至关重要的。本文将通过三张图片,详细探讨一栋两层住宅的室内外设计理念,展示如何通过巧妙的设计实现功能性与美观性的完美结合。

·      外观设计

         从外观上看,这栋住宅采用了现代简约风格,白色外墙搭配木色窗框和门廊,营造出一种清新自然的氛围。屋顶的瓦片设计不仅增加了建筑的层次感,还与周围的绿色植物相得益彰,展现出一种和谐的自然美感。前院的设计简洁而不失优雅,几株绿植和休闲椅的布置,为居住者提供了一个放松身心的户外空间。

30.jpg

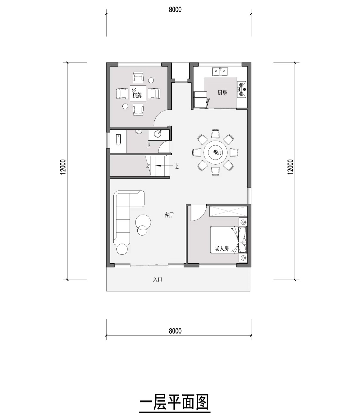
·      第一层

          进入室内,一层的平面布局合理,功能分区明确。

1.    入口处设有一个宽敞的客厅,连接着餐厅和厨房,形成了一个开放的生活区域。

2.    这种设计不仅增加了空间的通透感,还方便了家庭成员之间的互动。

3.    客厅旁边是一个老人房,考虑到老年人的生活需求,房间设计宽敞,采光良好,并且靠近卫生间,方便日常使用。

31.jpg

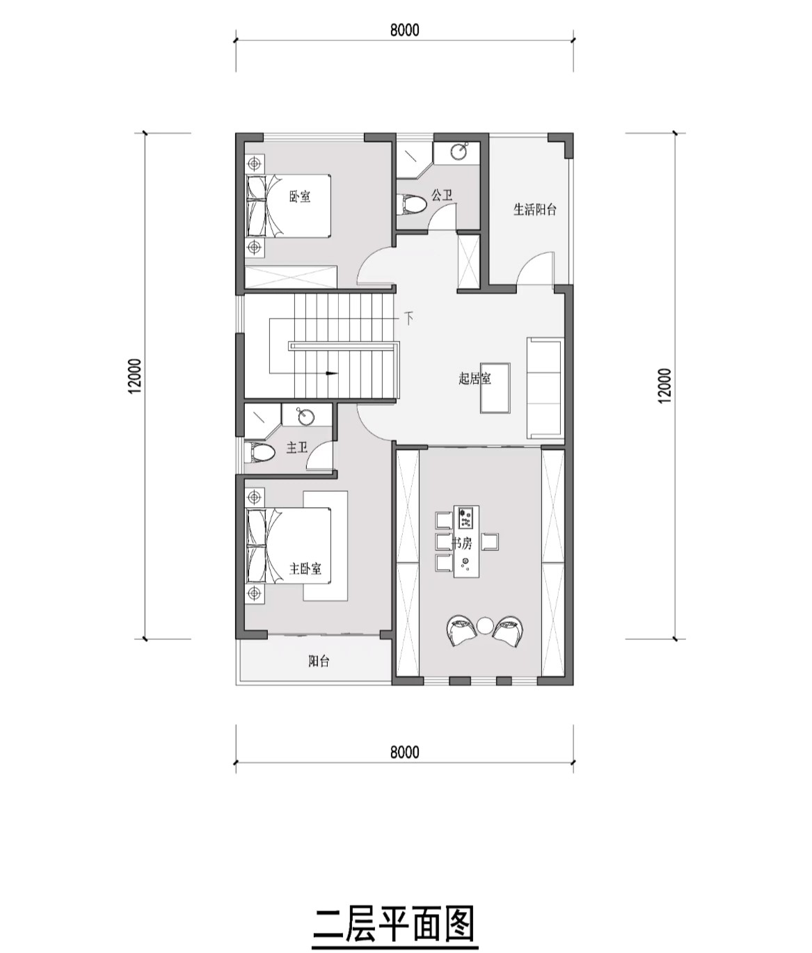
·      第二层

          二层的平面布局同样注重功能性和舒适性。

1.    主卧室带有独立卫生间和阳台,提供了一个私密且舒适的居住环境。

2.    旁边的次卧和书房则可以根据家庭成员的需求灵活使用,既可以作为客房,也可以作为工作学习的空间。

3.    公共卫生间的设计位置合理,方便各个房间的使用。

32.jpg

          综上所述,这栋住宅的室内外设计充分考虑了功能性、舒适性和美观性的结合。通过合理的空间布局和精心的设计细节,不仅满足了居住者的生活需求,还营造出一个和谐、自然的生活氛围。这种设计理念不仅适用于现代城市住宅,也为乡村别墅等其他类型的住宅设计提供了宝贵的参考。

转载请注明出自="://www.lemeizhai.com/" target="_self">://www.lemeizhai.com/

 
· 农村别墅要怎么设计(农村自建房...
· 涂料和乳胶漆的区别在哪呢(室内...
· 徽派建筑设计的新中式别墅
· 二层自建房,便宜实惠
· 三层13m×10.6m新中式农村自建别...
· 努力了半辈子,是时候卸下浮华,...
· 二层小面积小洋楼给您温馨的家一...
· 推荐四个乡村别墅,每个都是乡村...
  关于我们 网站事务 帮助中心
客服热线:400-079-6579
客服QQ:10928711 10928755 10928799
地址:山东省潍坊财富大厦1801
 

预定须知
顾客必读
配送方式

 


Copyright 2016 www.lemeizhai.com All Rights Reserved ICP备案序号:鲁ICP备2026012448号-1
轩鼎房屋图纸 电 话:0536-3385581 3385582 传 真:0536-3385581 地 址:山东省潍坊财富大厦1801


keywords:房屋设计图 房屋设计图 农村房屋设计图 农村房屋设计图 建房图文