您好,欢迎访问轩鼎房屋图纸网,轩鼎建筑为您提供新农村房屋设计图、别墅设计图纸以及别墅定制设计与咨询服务。
 
 
  热门搜索:自建房 别墅设计 房屋设计图   
网站首页 图纸大全 定制设计 作品展示 建房图文 联系我们
一层房屋图纸
二层房屋图纸
三层房屋图纸
四层以上图纸
双拼房屋图纸
其他建筑图纸
 
 
 您的位置:首页 ->> 建房图文 ->> 山景别墅:现代与自然的完美融合
 
 

山景别墅:现代与自然的完美融合

发布时间:2025/7/15 19:09:24 点击数: 102次 

山景别墅:现代与自然的完美融合

          在喧嚣的城市生活中,人们对自然的向往愈发强烈。这座坐落在山间的别墅,以其独特的设计,成为了连接现代生活与自然之美的理想居所。

·      外观设计

          别墅外观设计简约而不失大气,白色的墙体搭配灰色的屋顶,在青山绿树的映衬下,显得格外清新雅致。大面积的玻璃窗和玻璃护栏的运用,不仅增加了室内的采光,还让居住者能够随时欣赏到外面的山景。

41.jpg

·      室内设计 

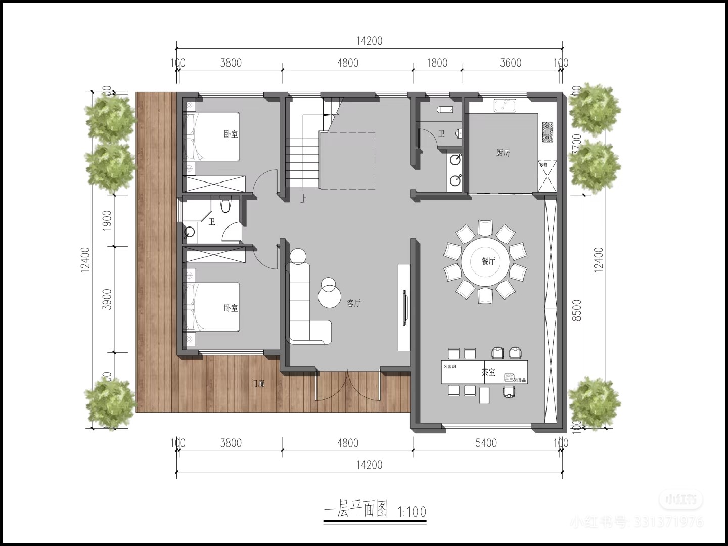
          室内一层的设计注重空间的开放性和功能性。客厅宽敞明亮,与餐厅相连,形成一个宽敞的公共活动区域。厨房与餐厅相邻,方便烹饪和用餐。卧室分布在一侧,保证了居住的私密性。

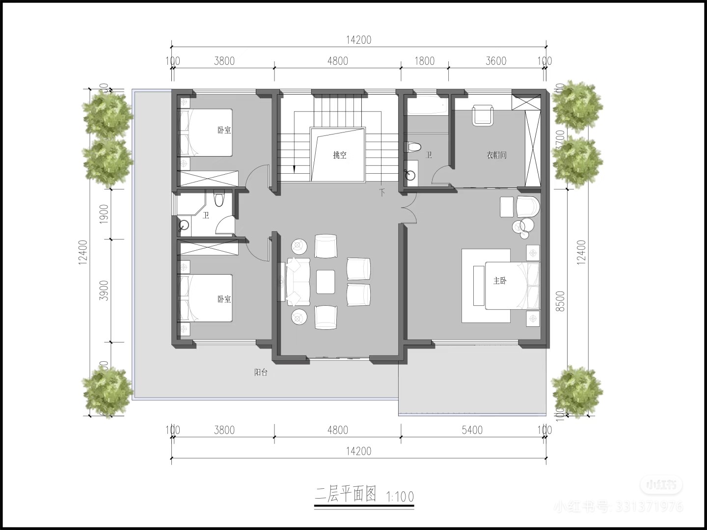
          二层则以居住空间为主,主卧配备了独立的衣帽间和卫生间,提供了舒适便捷的生活体验。挑空的设计增加了空间的层次感和通透感,让整个别墅更加宽敞明亮。

42.jpg

·      装修风格

         在设计过程中,设计师充分考虑了自然元素的融入。别墅周围的绿树和山石成为了天然的景观,通过大面积的玻璃窗和开放式的设计,将自然景色引入室内,让居住者仿佛置身于自然之中。同时,室内的装饰也以自然材质为主,如木质地板、石材墙面等,营造出一种自然、舒适的居住氛围。

43.jpg

·       设计理念

           这座山景别墅不仅是一个居住的场所,更是一个心灵的港湾。它让人们在享受现代生活便利的同时,能够亲近自然,感受自然的美好。在这里,人们可以远离城市的喧嚣,放松身心,享受宁静的生活。

          总之,这座山景别墅的室内外设计充分体现了现代与自然的完美融合。它不仅满足了人们对居住空间的功能需求,还为人们提供了一个与自然亲密接触的机会。相信在这里居住的人们,能够感受到生活的美好和宁静。

转载请注明出自="://www.lemeizhai.com/" target="_self">://www.lemeizhai.com/

 
· 建好别墅,享幸福人生,好的生活...
· 农村自建房室内装修布局如何做(...
· 石英石是人造石还是天然石(如何...
· 地板砖多少钱一块(2023年家庭普...
· 两栋两层别墅设计,宽约12米,第...
· 简约的二层欧式别墅设计给家人最...
· 这款经典的别墅设计,朴素简单,...
· 花钱买房不如自己建房,省钱,省...
  关于我们 网站事务 帮助中心
客服热线:400-079-6579
客服QQ:10928711 10928755 10928799
地址:山东省潍坊财富大厦1801
 

预定须知
顾客必读
配送方式

 


Copyright 2016 www.lemeizhai.com All Rights Reserved ICP备案序号:鲁ICP备2026012448号-1
轩鼎房屋图纸 电 话:0536-3385581 3385582 传 真:0536-3385581 地 址:山东省潍坊财富大厦1801


keywords:房屋设计图 房屋设计图 农村房屋设计图 农村房屋设计图 建房图文