您好,欢迎访问轩鼎房屋图纸网,轩鼎建筑为您提供新农村房屋设计图、别墅设计图纸以及别墅定制设计与咨询服务。
 
 
  热门搜索:自建房 别墅设计 房屋设计图   
网站首页 图纸大全 定制设计 作品展示 建房图文 联系我们
一层房屋图纸
二层房屋图纸
三层房屋图纸
四层以上图纸
双拼房屋图纸
其他建筑图纸
 
 
 您的位置:首页 ->> 建房图文 ->> 现代风别墅室内外设计:融合美学与功能的理想居所
 
 

现代风别墅室内外设计:融合美学与功能的理想居所

发布时间:2025/7/15 19:12:58 点击数: 104次 

现代风别墅室内外设计:融合美学与功能的理想居所 

          这套两层别墅的设计,从外到内都充分考虑了美观与实用的平衡,为居住者打造出舒适宜人的生活空间。

·      外观设计 

          外观设计上,别墅以白色为主色调,搭配木质元素,营造出清新自然的视觉效果。屋顶采用传统的瓦片设计,既保证了房屋的实用性,又增添了一份古朴的韵味。大面积的玻璃窗和拱形门设计,不仅增加了室内的采光,还让建筑外观更具层次感和艺术感,同时也体现了现代建筑设计中对自然光线的充分利用。

50.jpg

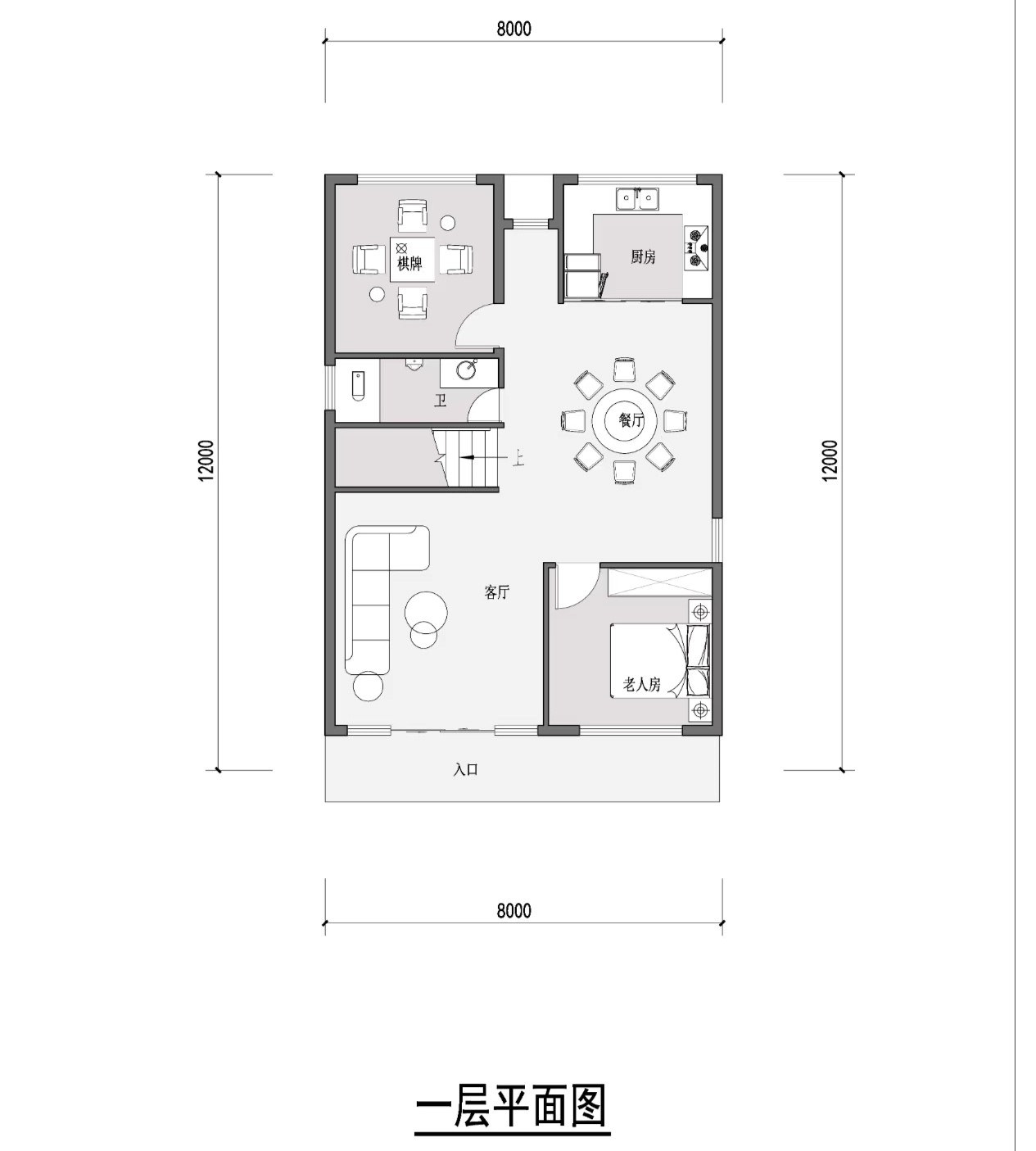
·      第一层 

          一层平面布局合理,功能分区明确。入口处宽敞明亮,给人一种开放、欢迎的感觉。

1.    客厅作为家庭活动的核心区域,空间开阔,与餐厅相连,方便家人之间的互动和交流。

2.    老人房位于一层,考虑到老人行动不便,这种布局方便老人的日常生活。

3.    厨房紧邻餐厅,使得烹饪后的食物能够快速上桌,提升了用餐的便利性。

4.    此外,一层还设有一个独立的棋牌室,为家庭成员提供了一个休闲娱乐的专属空间。

51.jpg

·      第二层 

          二层主要是居住区域,设计有主卧、次卧、书房和起居室。

1.    主卧空间宽敞,配有独立卫生间,保证了主人的私密性和舒适性。

2.    次卧可以作为儿童房或客房,满足不同的居住需求。

3.    书房的设置为学习和工作提供了一个安静的环境。

4.    起居室则是家庭成员放松休闲的好地方,在这里可以阅读、聊天或者欣赏窗外的景色。

5.    二层还设有生活阳台,增加了室内的通风和采光,同时也为晾晒衣物等日常活动提供了便利。

52.jpg

          整体而言,这套别墅的室内外设计将现代风格与实用功能完美融合,无论是外观的清新雅致,还是内部空间的合理布局,都体现了对居住者生活品质的关注,是一处集美观与舒适于一体的理想居所。

转载请注明出自="://www.lemeizhai.com/" target="_self">://www.lemeizhai.com/

 
· 最适合养老的别墅就是这款,错过...
· 桐木可以做家具吗(桐木板材的优...
· 三层自建别墅小楼房屋设计图纸(...
· 采用大量木质结构的二层中式别墅...
· 建房最重要的是施工图纸,更重要...
· 农村房屋住宅风水禁忌与破解(农...
· 农村160㎡双层港风别墅设计,两...
· 农村别墅设计,外观美观实用的二...
  关于我们 网站事务 帮助中心
客服热线:400-079-6579
客服QQ:10928711 10928755 10928799
地址:山东省潍坊财富大厦1801
 

预定须知
顾客必读
配送方式

 


Copyright 2016 www.lemeizhai.com All Rights Reserved ICP备案序号:鲁ICP备2026012448号-1
轩鼎房屋图纸 电 话:0536-3385581 3385582 传 真:0536-3385581 地 址:山东省潍坊财富大厦1801


keywords:房屋设计图 房屋设计图 农村房屋设计图 农村房屋设计图 建房图文