四合院,又称四合房。历史悠久,分布广泛,是中式建筑的典中之典。蕴含着深刻的文化内涵,是中华传统文化的载体。以简为主简而不俗,下面这款主屋为两层的四合院设计也许能带给您些许灵感:
户型基本信息
开间:25.64米,进深:34.04米
建筑面积:700平方米
主体造价参考:77万左右

.
白墙灰瓦,中式元素点缀其中![ICD_1@]~A{]{@LHF2XKI5N6.jpg ICD_1@]~A{]{@LHF2XKI5N6.jpg](/ueditor/asp/upload/image/20190208/15496154447555921.jpg)
布局讲究正房和偏室,偏室内做了一些处理,可休息、交谈、娱乐
![R$UGS]]P$C519]H[1@B5N36.jpg R$UGS]]P$C519]H[1@B5N36.jpg](/ueditor/asp/upload/image/20190208/15496171404822660.jpg)
正房的露台做了很大的出挑处理,下方充当一层的廊道,上方作为二层的露台,装饰、线脚都采用了新中式元素

庭院:院子中间做了休息台,平静的浅水池围绕,一个躺椅,几个休闲座位散落摆置,在树下乘凉,聊天或者休憩都不错

藤条编织和石质的座椅均可防潮。这些空间的设定,一方面增加了会客的空间和选择,
多走走停停促进健康有益身心


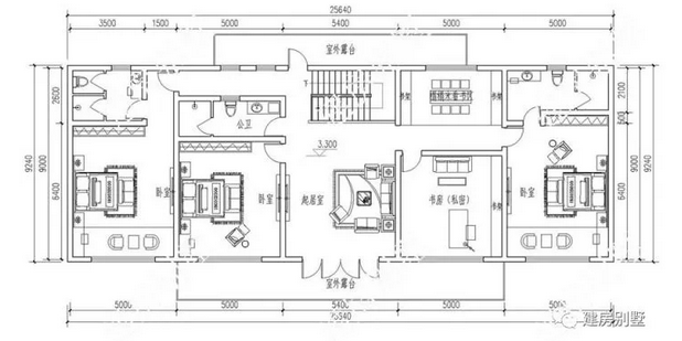
平面图:一层主要设计还是采用传统四合院的设计,有两个主卧,一个保姆房还有一处小卧室,旁边设有健身房,茶室,棋牌室等娱乐场所,留一个空房间当储藏室,二层设有三处卧室,两处书房,两处室外露台,空闲的时候,可以阅读书籍,陶冶情操


这样一栋怡情养性的宅子,怎不令人心生向往呢。