您好,欢迎访问轩鼎房屋图纸网,轩鼎建筑为您提供新农村房屋设计图、别墅设计图纸以及别墅定制设计与咨询服务。
 
 
  热门搜索:自建房 别墅设计 房屋设计图   
网站首页 图纸大全 定制设计 作品展示 建房图文 联系我们
一层房屋图纸
二层房屋图纸
三层房屋图纸
四层以上图纸
双拼房屋图纸
其他建筑图纸
 
 
 您的位置:首页 ->> 建房图文 ->> 中式三层农村别墅:大气!
 
 

中式三层农村别墅:大气!

发布时间:2019/2/9 20:05:50 点击数: 3467次 

看惯了外面的五彩斑斓,回头还是黑白灰白耐看,尤对白墙灰瓦情有独钟,久而不腻!

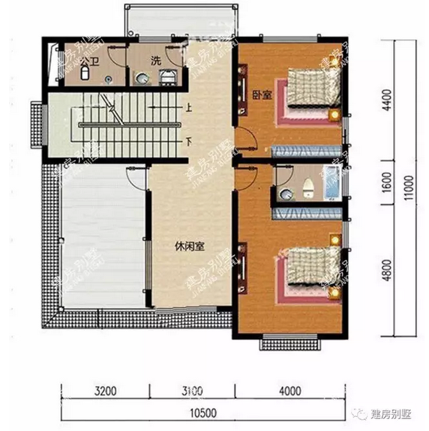
户型基本信息:

开间:11.2米,进深11米

占地面积:116.64平方米

建筑面积:328.4平方米

结构类型:框架结构

主体造价参考:33-37万左右

 

ZY~CJRCE{PE5VB7T84(~Y1E.jpg

设计思路:

1、一层设有一个老人卧,照顾老人上下楼可能不方便;

2、三层共设5个卧室,基本在满足自家居住的基础上,还可以让客人留宿;

3、布局注重简单实用,适用于广大农村家庭。

平面图如下:

 

IFG@9(`449G{]EL0G8}X)6H.jpg

 

@T1X7XH02B4${Q[CMCZ]`31.jpg

HS59_U2]2P5KXP$XM5P`7$8.png

QMEO(@H5XUZ~BK4~)KCZ169.png

希望传统风格能继续保留,传承下去。好的东西值得让更多的人分享、欣赏!

 
· 实拍精装两层小别墅外观及内部装...
· 农村违建可以强拆吗(农村违建房...
· 集成灶与传统灶有什么区别(集成...
· 农村自建房瓷砖如何挑选(自建房...
· 19.8×14米农村别墅设计,带车库...
· 年轻人第一套别墅必须是现代别墅...
· 农村自建房到底什么风格最受欢迎...
· 上海买房需要什么条件(上海买房...
  关于我们 网站事务 帮助中心
客服热线:400-079-6579
客服QQ:10928711 10928755 10928799
地址:山东省潍坊财富大厦1801
 

预定须知
顾客必读
配送方式

 


Copyright 2016 www.lemeizhai.com All Rights Reserved ICP备案序号:鲁ICP备2026012448号-1
轩鼎房屋图纸 电 话:0536-3385581 3385582 传 真:0536-3385581 地 址:山东省潍坊财富大厦1801


keywords:房屋设计图 房屋设计图 农村房屋设计图 农村房屋设计图 建房图文