兄弟家人之间最重要的是和睦,只有家庭和睦才不被别人欺负才不被别人看不起,从古至今人们都知道家和万事兴,“和”在方方面面都有体现比如说:和气生财,在与人做生意时只要和和气气的你就能赚到钱,就像双拼别墅一样寓意着一家子团结一致和睦共处。建上一套在村里定能光耀门楣,显得家庭和睦兄弟齐心。
双拼别墅图纸一:
红顶带罗马柱的双拼农村别墅辉煌大气
占地尺寸:13.8米*11米(双27.6米x11米)
占地面积:139平方米
建筑面积:379.3平方米
建筑结构:砖混结构
主体造价:30万
别墅具体效果图:




双拼别墅图纸二:
占地尺寸:16.2米x10.76米
占地面积:174平方
建筑面积:367.42平方米
建筑结构:砖混结构
造价估算:28万
线条分明层次感强的双拼别墅您值得拥有
别墅具体效果图:

户型开间16.2米,进深10.76米,占地面积174平方米,主体造价28万左右。
一层设计有堂屋、客厅、卧室、厨房、餐厅、卫生间,功能可谓十分齐全空间之大让人流连忘返。

二层设计有3个卧室,棋牌室书房阳台样样俱全特别实用。

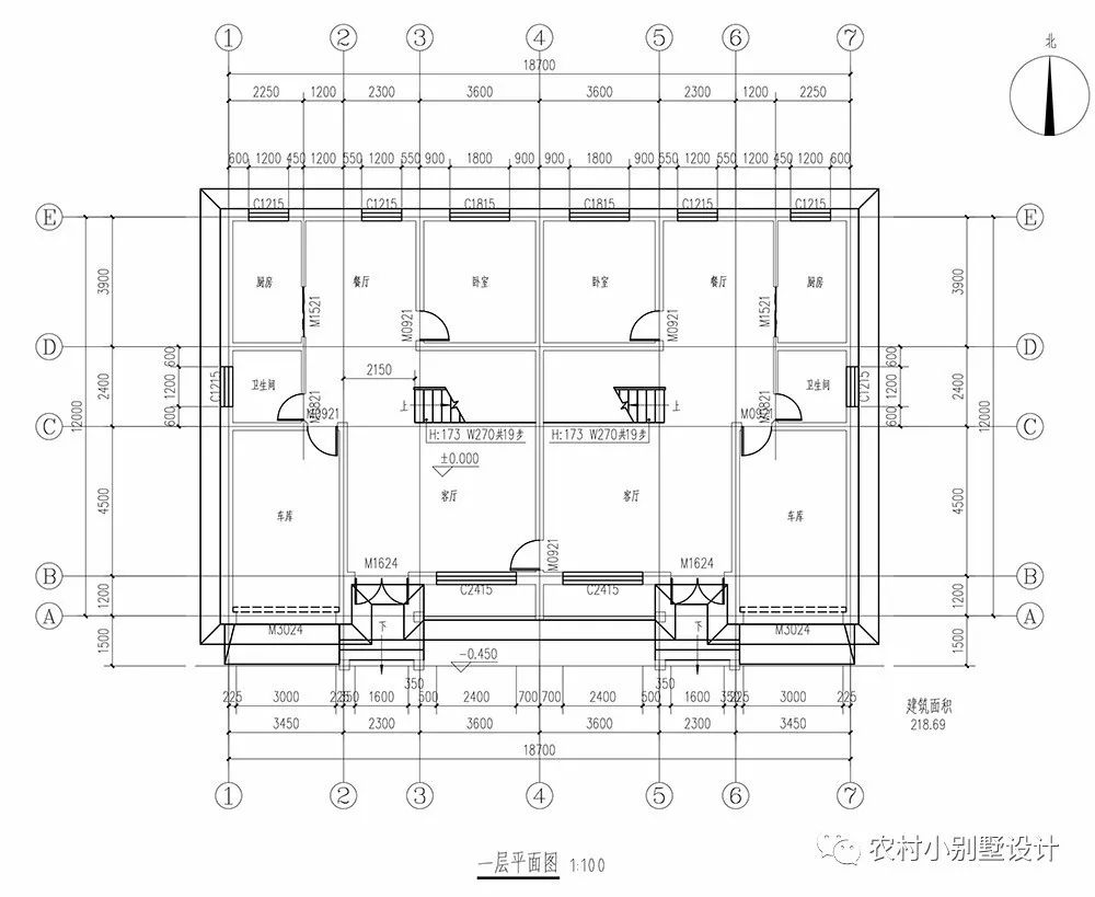
双拼别墅图纸三:
占地尺寸:18.7x12米
占地面积:140.24㎡
建筑面积:408㎡
建筑结构:砖混结构
造价估算:32万
双拼大阳台别墅整体简洁典雅美观,是别墅中的美男子
别墅具体效果图:

设计功能:
一层:车库、客厅、卫生间、卧室、餐厅、厨房;

二层:露台、主卧室、2间卧室、起居室、卫生间。

转载请注明出自轩鼎别墅设计://www.lemeizhai.com/