朋友问小编我,建别墅为什么一定要有立柱雕花拱形顶呢?我是这样回答的:别墅不一定要有这些,不同的别墅有不同的风格,就看别墅的款式了,但欧式别墅就要有立体雕花拱形顶,但不是所有的都要有,这要看自己怎么选了。但这里小编要说还是有的好,罗马柱还是别的什么拱形顶,会让别墅显得特别上档次富有内涵。
小编要推荐的这款别墅比较喜庆,亮点颇多,它是四开间的豪华二层别墅,门厅和窗型设计都比较富有内涵,立柱雕花拱形顶是门厅的设计思路,采用这种方案,既时尚又霸气,特别引人瞩目。八角形飘窗、方形门窗和拱形门窗,外加窗套设计,豪华感倍增,这些设计赋予了这款别墅无与伦比的内在,建在村里特别有气质。
别墅基本信息:
建筑设计尺寸:开间14.76米,进深10.36米,建筑占地160平米,总建筑面积320.2平米。
别墅效果图纸:

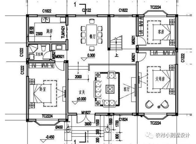
右侧设计客厅,入户就是玄关,一层布局三间卧室,分别位于建筑的三个角落,厨房、餐厅、楼梯间和公卫配置齐全,二层设计带露台的起居室、设计有四间卧室,有几间可作为客房供客人居住,其中阳面两间为套房,并在阳面设计一间独立书房,平时可在此陶冶情操;补充一点精神食粮,阴面预留一间棋牌室。
别墅室内布局:一

别墅室内布局:二
这款别墅虽占地面积略大,但其功能布局上却无一丝浪费,房间布局实用,且卧室的数量还有继续扩展的可能性,比如书房的使用,棋牌室的改造等等,可以把棋牌室书房改造成书卧一体的卧室,既能读书也能休息非常方便;这款户型外观均采用红白搭配,红白相间,样式美观大气,你对这样的设计满意吗?喜欢吗?
农村建房,有的人家中人口多,需要更多的居住空间。
转载请注明出自轩鼎别墅设计://www.lemeizhai.com/