旧房翻新改造,重建什么样的房子呢?当然是别墅啦,不管什么样的房子,都不如别墅,别墅的好处不用我多说了,想必大家都知道。不要认为别墅很贵,其实自己建的是最便宜的 ,也是最放心的,至少不会偷工减料。
第一款:

户型解析:首先我们来看映入眼帘的是大气的罗马风格石柱, 高贵的花纹 配上传统的红砖以及天然岩石纹理的底部装饰,个个都相得益彰,屋内,客厅与餐厅厨房的一线式设计,加上活动区起居区的分层,一楼有会客厅,二楼有休闲的小厅,这些设计使空间利用率更加完美 。别墅不管大小空间利用率好的,就是好别墅。
室内布局设计:一

室内布局设计:二

第二款:

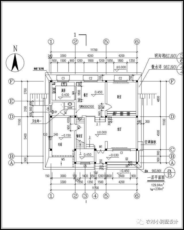
农村别墅基本信息
☑ 占地尺寸:11.7米*11.1米
☑ 占地面积: 129.24㎡
☑ 建筑面积:236㎡
☑ 建筑结构:砖混结构
☑ 造价估算:20万
室内布局设计图:一

一层设有:车库、客厅、餐厅、厨房、卫生间、卧室;
室内布局图:二

二层设有:主卧、阳台、书房、卫生间、卧室、卧室、休闲厅、露台;别墅应具备的都有。
外观点评:户型采用坡屋顶,房间尺度设计适宜,空间利用率高,富有时代气息。两种外观配色方案一种褐色面砖,乳黄色墙漆、色彩明快;一种是乡村田园风,粉色与褐色磁砖搭配,温馨浪漫。
转载请注明出自轩鼎别墅设计://www.lemeizhai.com/