此款图纸是为江苏泰州李总设计的欧式="://www.lemeizhai.com/PictureShow.asp?PicID=1358&PicClassID=88" target="_self" title="欧式两层">两层别墅案例分享。
一层建筑面积为144.25平方米,二层建筑面积为93.23平方米,总面积为228.05平方米。是一款复式户型。此款图纸虽然只有228.05平方米,但布局的设计以及使用空间都是非常的强。一二楼的多个卧室设计,满足了一家子过年回家住的需求。李总平常在外工作,一年当中,过年回家待的时间最长,亲戚朋友来往,多个卧室大大解决了这个需求 。二楼还单独设立了儿童房,让孩子有自己的生活空间。
一层平面图

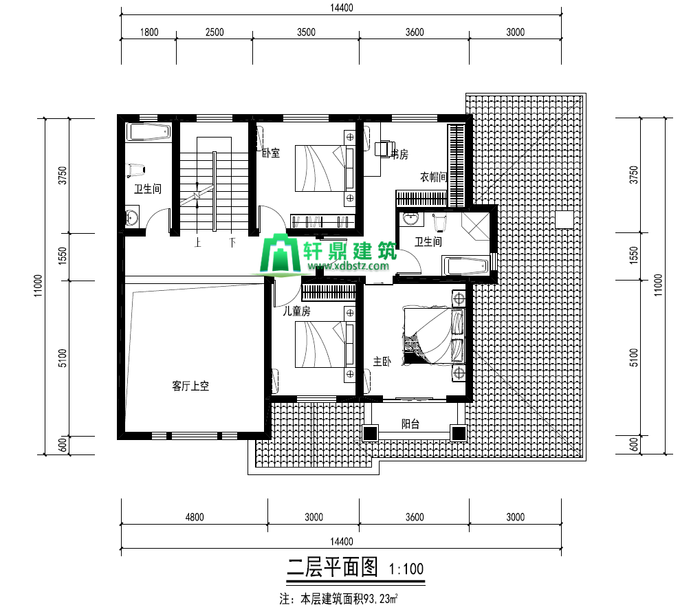
二层平面图

一楼:门厅,客厅,神台,卧室*2,卧室带独卫,卫生间,餐厅,厨房
二楼:卧室,儿童房,卧室带阳台卫生间,衣帽间,卫生间
☑ 占地尺寸:14.4x7.62米
☑ 占地面积:137.18㎡
☑ 建筑面积:228.05㎡
☑ 造价估算:25-30万
☑ 一层建筑面积(包含外墙):137.18㎡
正面效果图

鸟瞰效果图

侧面效果图

背面效果图

外观效果图设计师接手后,和李总沟通了房屋的详细细节。对于门窗,屋顶,房檐,门楼都做了详细的沟通。因左右都有邻居的房子,所以此款房子到屋脊的高度8.860,,不能压倒对方的高度。一层层高3.6,二层层高3.3米。背面侧面开窗。 底部采用文化石,一二楼贯穿淡黄色的面砖(这个颜色越来越多的乡村建房网红色),屋顶搭配暗青色的砂浆卧瓦。客厅窗户的设计,使整个外观主体看起来十分的大气,具有很强的立体感。
图纸包含建筑施工图,结构配筋图,排水施工图,电气施工图,外观效果图全套的施工图纸。砖混结构造价30万左右就可以盖一栋这样精致的欧式两层小洋楼,还不快快行动起来,选择你心仪的户型,早日成为村里最靓的仔。