陕西山阳县武总="://www.lemeizhai.com/Picture.asp?PicClassID=91" target="_self" title="三层自建房" style="font-family: 微软雅黑, "Microsoft YaHei"; font-size: 18px;">三层自建房案例分享:
武总宅基地面积16*15 ,想重新设计一款三层的自建小洋楼,希望可以多一些卧室,满足一家人的需求,并且一楼能带有车库,留有侧门,以及三楼露台大一些,方便晾晒以及活动区域等。
一层 平面图:车库,客厅,卧室带独卫,棋牌室,卫生间洗衣机,,餐厅,厨房,储藏室

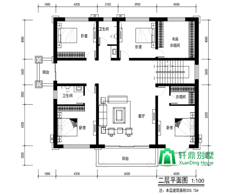
二层 平面图:卧室,卫生间,卧室带衣帽间,卧室带独卫,客厅,卧室带书房,小阳台

三层平面图:卧室,卫生间,卧室带衣帽间,卧室带卫生间,大露台

外观设计风格为经典的欧式,整体搭配的颜色以乳白色为主,显得不复杂,线条层次感丰富,也显得立体色调感很强。特别是装饰材料方面,不用花很多心思就可以买到。
正面效果图:

侧面效果图:

鸟瞰效果图:

背面效果图:

此款三层自建房,整体高度13.765米,一层层高3.6米,二层层高3.3米,三层层高3.3米。建筑面积537.65㎡。占地尺寸为16*14.8,占地面积为195.51平方米。
包含建筑施工图,结构配筋图,排水施工图,电气施工图,外观效果图。
武总的别墅正在施工中,一起期待一下这款三层="://www.lemeizhai.com/index.asp" target="_self" title="农村自建房">农村自建房的完工吧。