广西郑总="://www.lemeizhai.com/PictureShow.asp?PicID=1237&PicClassID=91" target="_self" title="三层自建房">新农村设计案例分享:
占地125平,做个活动室和茶室,剩余作为房间。郑总家里宅基地有限,建筑面积要格外的控制。了解到郑总的需求,我们方案设计师为郑总设计以下方案:
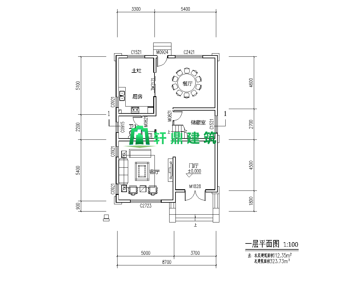
一层平面图:

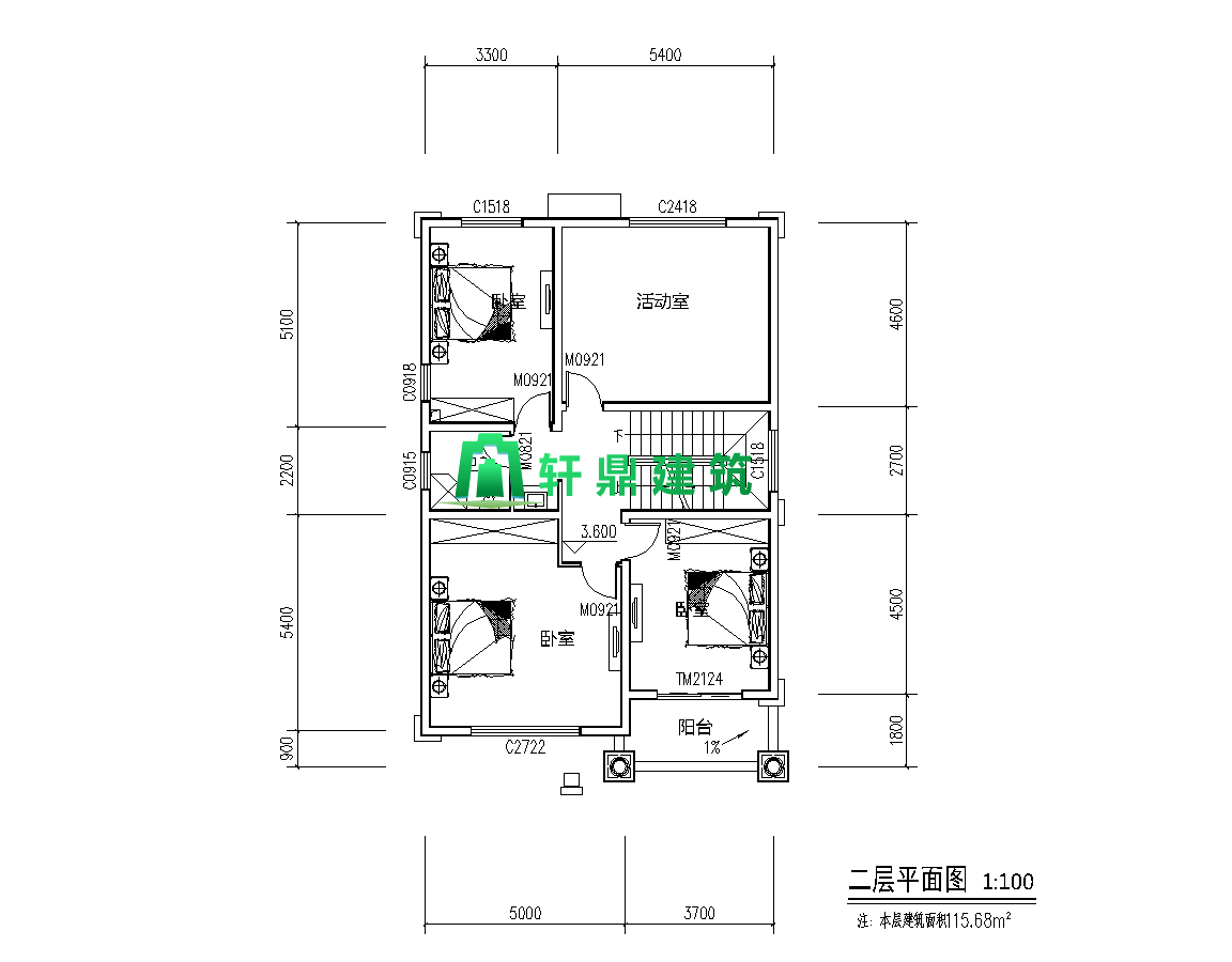
二层平面图:

三层平面图:

整个的建筑面积323平方米,占地125平。一楼前后都有门,方便前后的出入;二楼有活动室,可以让小孩在活动室玩耍;三楼带有两个卧室,以及一个茶室,茶室推拉门出去则是露台。整个的采光是十分的不错~
看一下整体的效果图吧:
正面效果图:

鸟瞰效果图;

侧面效果图:

背面效果图:

效果整体大部分采用了淡黄色面砖,整体给人满满的温馨感~房屋主体高12.9米,不影响前后邻居。施工图的设计包含了建筑施工图,结构配筋图,排水施工图,电气施工图。整个设计方案出来后,得到了郑总一家人的认可。我们也感到十分的开心。
此款图纸郑总已经在施工中,后期整体施工完毕,再和大家一起分享实景案例哦!