江苏戴总三层中式="://www.lemeizhai.com/index.asp" target="_self" title="农村别墅设计">农村别墅设计案例分享
戴总有一块地皮是长方形,面宽最多只能做到8m,进深很长大约有40m,想设计一款中式="://www.lemeizhai.com/Picture.asp?PicClassID=91" target="_self" title="三层设计图">三层别墅户型,不知道该如何设计。在和戴总沟通的几天,戴总想设计的样式以及需求,我们大概了解后,方案设计师根据戴总的描述,设计出初稿,又和戴总以及家人沟通修改,最终方案如下:
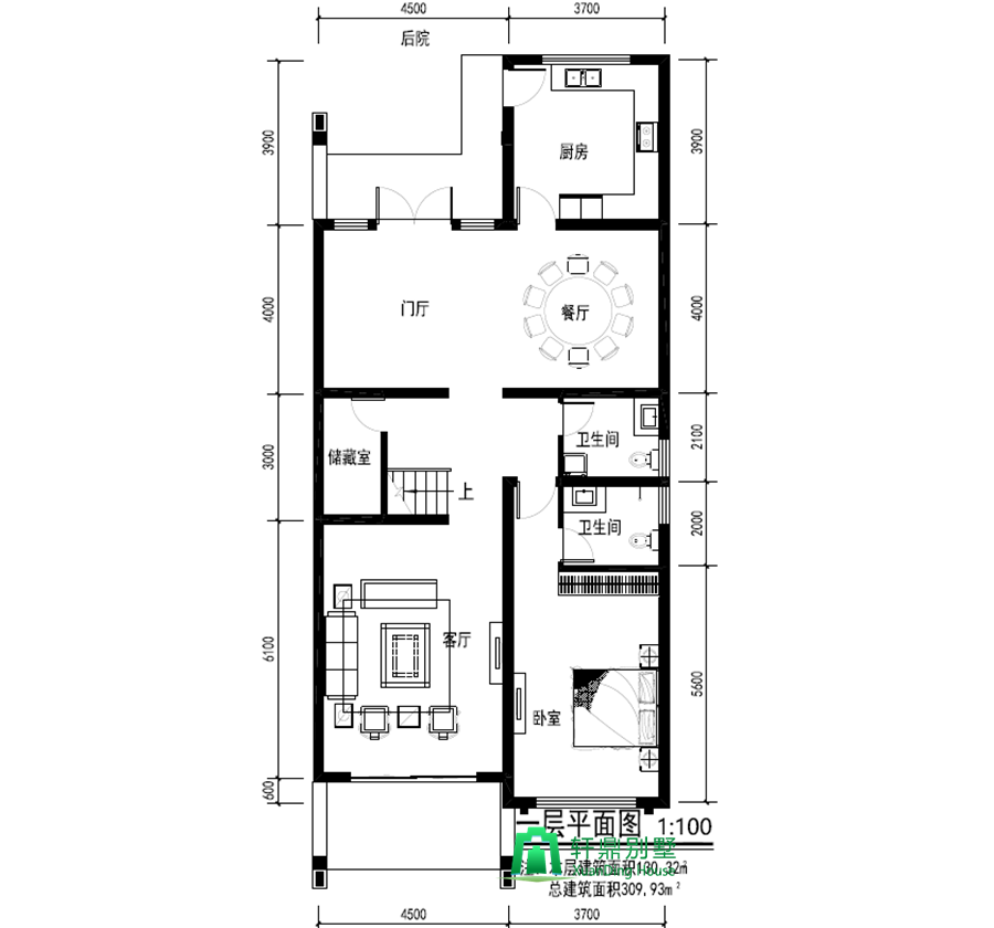
一层平面图:客厅,卧室带独卫,卫生间,储藏室,门厅,餐厅,厨房

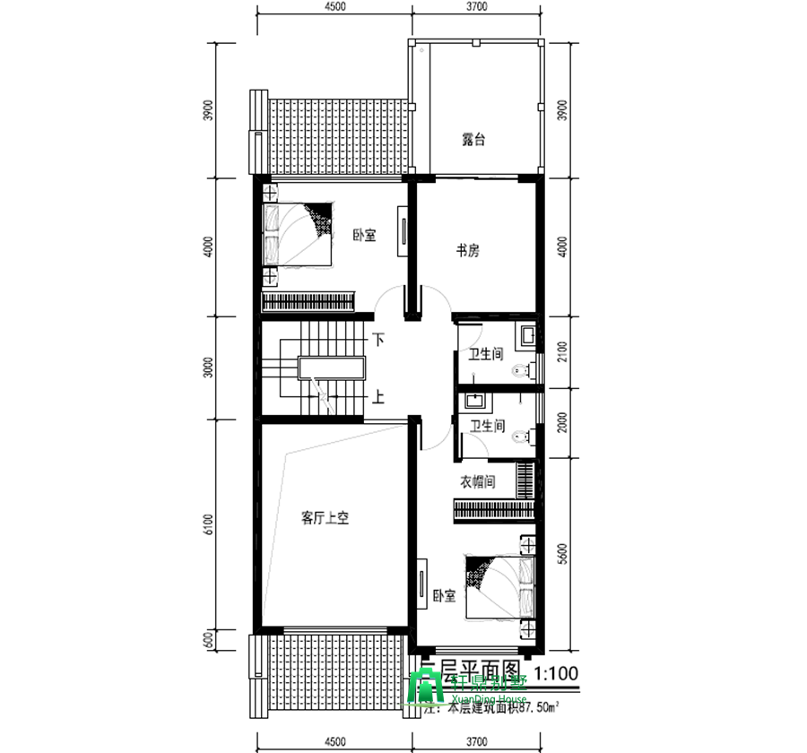
二层平面图:卧室,书房,卫生间,卧室带独卫,露台

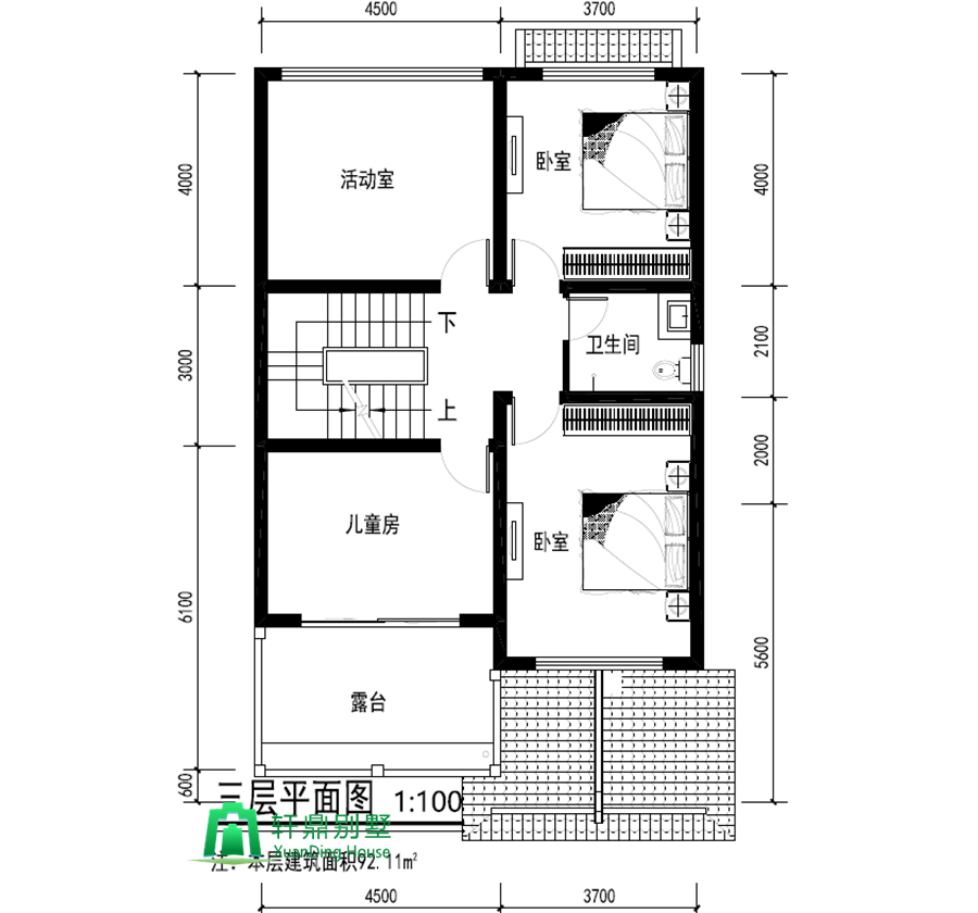
三层平面图:活动室,卧室,卫生间,卧室,儿童房,露台

一楼,起居室带有卫生间,方便老人居住。厨房留有侧门,客厅挑空的设计,使整个空间都通透明亮。
二楼,卧室偏多,书房带有露台,工作闲暇之余,走出书房,看看外面的风景,身心愉悦。
三楼,儿童房和活动室的设计,可以让孩子尽情的玩耍。露台不仅晾晒衣物方便,养几盆花,也是惬意十足。
正面效果图:

鸟瞰效果图

侧面效果图

背面效果图

房屋效果图,整体高度10.508m,一层3.2m,二层3.2m,三层3.0m。 大门,窗户,露台都采用的褐色中式元素。墙体为白色真石漆,屋顶采用蓝色琉璃瓦。此款户型,分为前院和后院,前院可以休闲娱乐,后院可以作为生活空间。
主体建造完成后,可以在院子两边种一些不同品种的树,不仅享受夏天乘凉,也可以吃到秋天硕果累累的果实。享受家庭的幸福生活~
施工图设计:
