今天带大家一起欣赏一下为江西张总设计的一款140平气派美观的="://www.lemeizhai.com/Picture.asp?PicClassID=88" target="_self" title="两层自建房设计图" style="font-family: 微软雅黑, "Microsoft YaHei"; font-size: 18px;">二层自建房设计图案例。
此款图纸占地140平左右,尺寸为12.84*12.68.建筑面积279.82㎡,是一款两层自建房的首选户型。张总通过与工作人员的几天沟通定稿,最终和设计师确定方案设计。
一层:客厅、餐厅、厨房、卧室、老人房(带卫生间)、卫生间、洗衣间

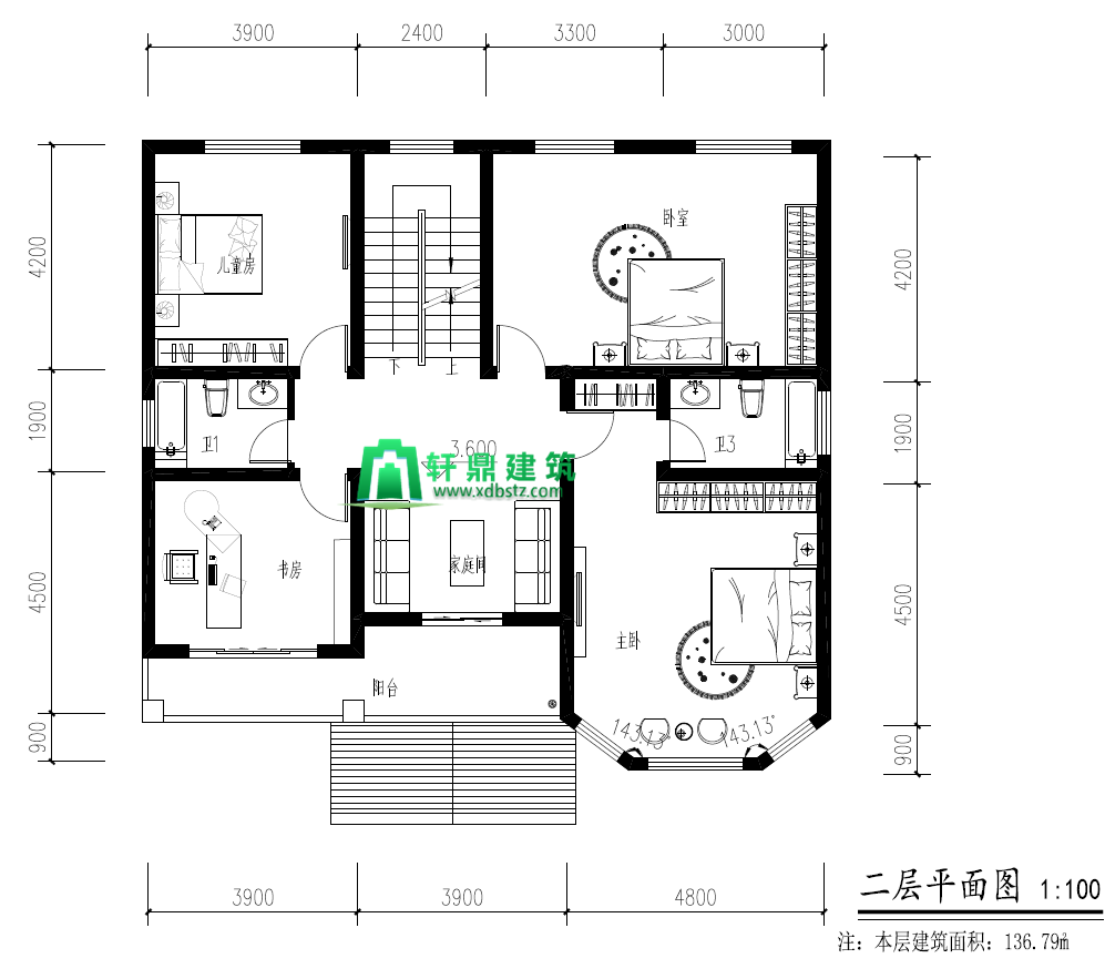
二层:家庭间、主卧(带卫生间)、卧室、儿童间、书房、卫生间、阳台

实景案例分享:

正面效果图

鸟瞰效果图

侧面效果图

背面效果图

此款图纸张总已经设计完成 ,和大家分享一下实景案例图吧。

有没有也想建一款这样的="://www.lemeizhai.com/Picture.asp?PicClassID=88" target="_self" title="自建房设计图">二层别墅呢,美观气派。建在村里也是十足的有面子。此款全套图纸,包含建筑施工图,结构配筋图,排水施工图 电气施工图以及外观效果图。