云南昆明王总三层="://www.lemeizhai.com/Picture.asp?PicClassID=97" target="_self" title="双拼">农村别墅双拼案例分享
此款图纸的业主来自昆明。想设计一款三层的双拼户型,正面背面想设计一样的外观。因为家乡在旅游圈里,地理位置又沿街,想做个店铺,自己和爱人平时做点小生意。
王总房屋进深为19.92,面宽12.24米,五六十万的费用。砖混结构。
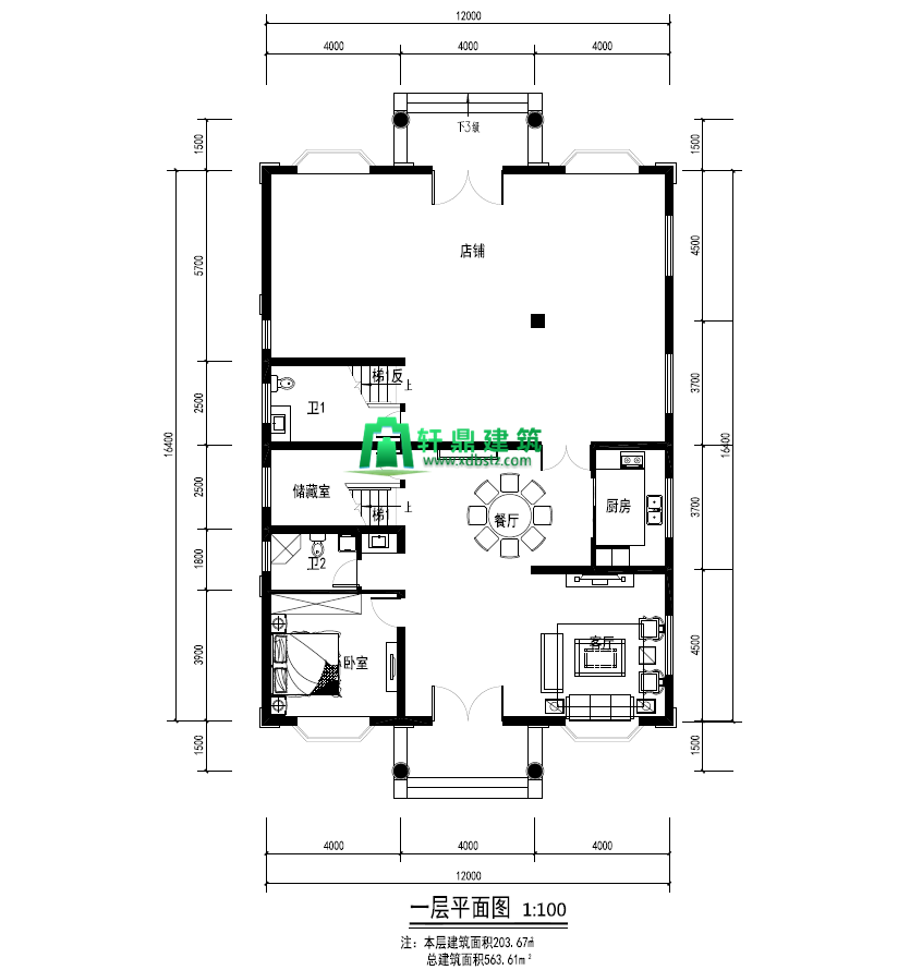
一层平面图

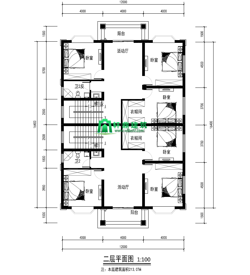
二层平面图

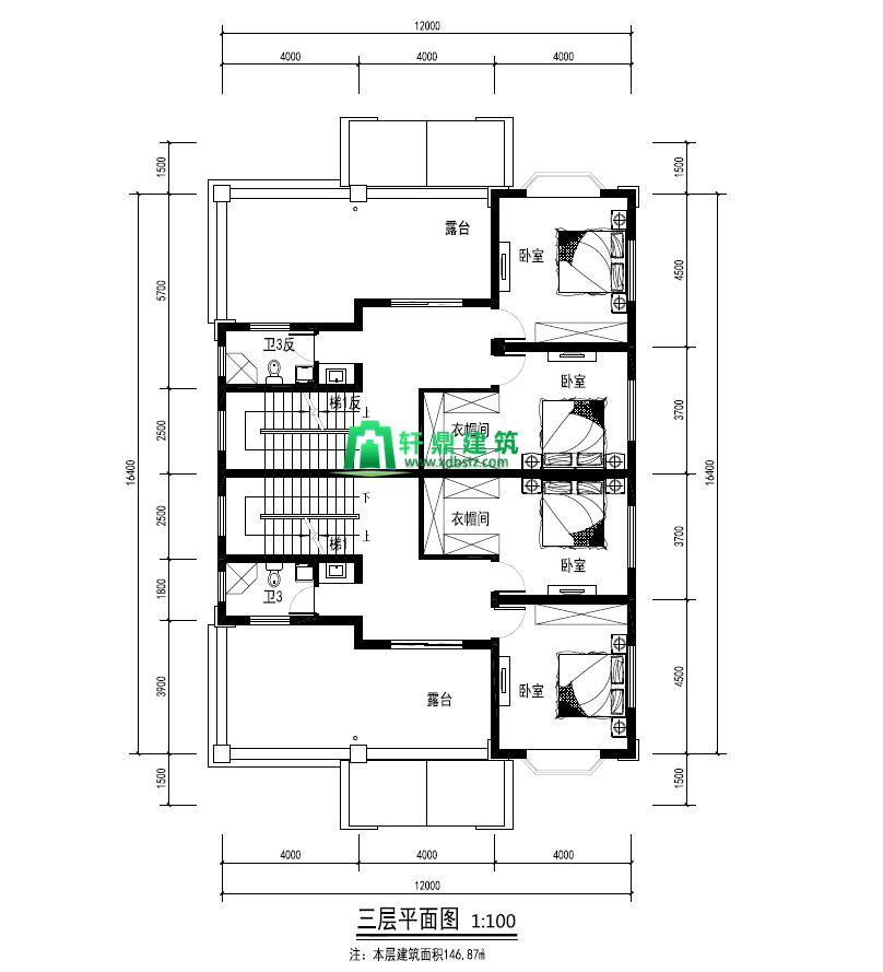
三层平面图

一层正面为客厅,卧室,卫生间,餐厅,厨房,储藏室,神台,留有一个小门可以通向后面的店铺以及卫生间
二层卧室*2,卧室衣帽间,卫生间,阳台
三层卧室,卧室衣帽间,卫生间,露台
这个户型王总是和父母以及弟弟家一起生活。一楼留给父母住,二楼三楼分别是自己和弟弟家。方案经过几次和弟弟的协商最终定稿。室内布局以及空间的利用率高,侧面设计的窗户也是非常的多。相同的布局,相同的外观,不偏不向。两家人可以很好地生活在一起,温馨舒适。
图纸参数:
占地尺寸:12.24m*19.92m,占地面积:227.00㎡,建筑面积:563.61㎡.
正面效果图

侧面效果图

鸟瞰效果图

背面效果图

外观为欧式风格。红色占据了大部分房屋面积,底部褐色的文化石,大面积的砖红色面砖,屋顶搭配红色的琉璃瓦,门前这两个大柱子更是显得亮眼。
建在农村,周围都是绿树,配上红色的 屋顶,简直可以说是红瓦绿树环绕啊。整体非常的美观大气,我们见惯了背面是窗户,前面是两个大门的双拼户型后,这样一款也是很新颖的主要施工难度不高,农村的师傅也都可以做的来。
地上3层,建筑总高度(到屋脊高度):13.310米,建筑面积:563.61平方米。一层层高3.6米,二层层高3.3米,三层层高3.3米。
图纸上的细节点设计师都是标注的非常详细。施工过程中,也是随时沟通。王总以及家人对这个方案很满意,王总的老家现在发展旅游业,很多家庭都准备建房,建好后,还会介绍更多的乡亲们设计,自己的这款户型也是很有信心做村里最靓的仔~
