广州伍总豪华四层复式带电梯="://www.lemeizhai.com/Picture.asp?PicClassID=88&page=3" target="_self" title="农村设计图">农村设计图
此款图纸是广州伍总的别墅,总建筑面积1172.03㎡,面宽18.5米,进深20米。框架结构,主体造价约150万左右。配有超大车库,可容纳三到四辆车,贯穿电梯。超过卧室,每个卧室配有卫生间。布局实用,利用率极高。室内宽敞明亮。是大面积业主的首先户型图。
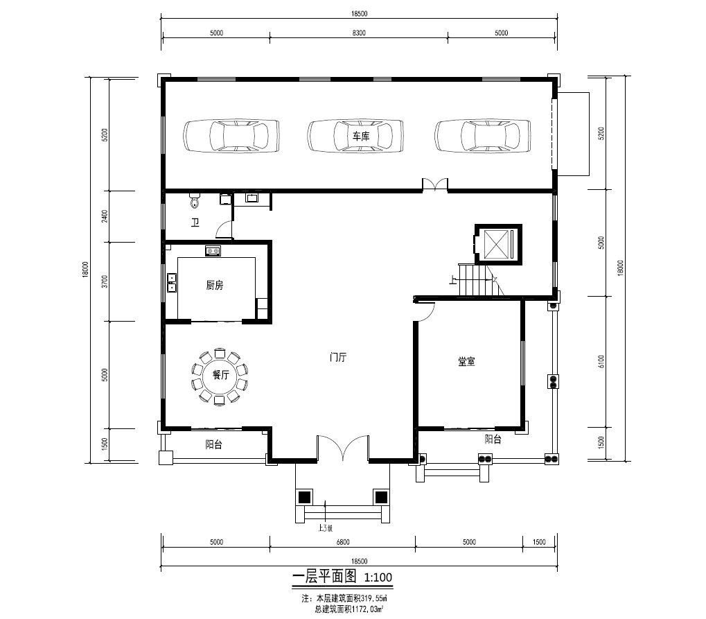
一层平面图

二层平面图

三层平面图

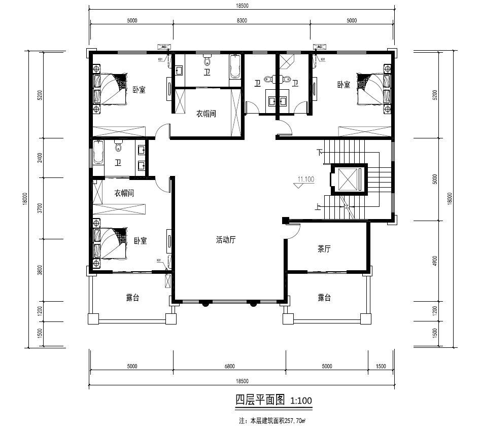
四层平面图

一层:车库,客厅,厨房,阳台,餐厅,堂屋,卫生间
二层:卧室衣帽间卫生间*2,卧室带独卫,卫生间,客厅,茶厅,露台
三层:卧室衣帽间卫生间*2,卧室带独卫,卫生间,卧室带小露台,大露台
四层:卧室衣帽间卫生间,卧室衣帽间卫生间带露台,卧室带独卫,活动厅,茶厅,露台.
建筑层数:地上4层,建筑总高度(到屋脊高度):18.165米,建筑面积:1172.03平方米。
结构体系:框架结构,抗震设防烈度七度,屋面为现浇混凝土屋面。
楼层层高:一层层高3.9米,二层层高3.6米,三层层高3.6米,四层层高3.6米。
正面效果图

侧面效果图

鸟瞰效果图

背面效果图

伍总喜欢欧式设计房屋。找了很多的素材以及网站的欧式农村自建房。希望能相对结合起来。因宅基地面积充足,所以外观一定要做到大气。多窗。配色低调一些,不要太张扬。
设计师整体为外观的选色为乳白色。在试色过程中,试了好几次,供伍总和家人选择。最终挑选此款效果。屋顶在搭配上蓝色的砂浆卧瓦,房屋正面点缀几处欧式构件,欧式风格独有的特点体现的淋漓尽致。每层都有或大或小的阳台以及露台,每层都能欣赏到整个乡村的风景。
现在越来越多的年轻人,在外面挣了钱,会回老家盖房子了。所以现在农村的房屋也不再是一成不变的老房子。各种风格都有,欧式,中式,田园,一层,两层,有的家庭甚至四五层。在城里花几百万买一处商品房,还不如回老家盖一栋几层的房子,一大家子一起住,其乐融融,也能留在父母的身边,孝敬父母。
