湖南万总定制="://www.lemeizhai.com/PictureShow.asp?PicID=875&PicClassID=91" target="_self" title="三层自建房" style="font-family: 微软雅黑, "Microsoft YaHei"; font-size: 18px;">三层自建房别墅
2020年,万总通过朋友的介绍找到我们="://www.lemeizhai.com/index.asp" target="_self" title="轩鼎建筑设计公司">轩鼎设计公司,朋友之前在这做过一次设计,到朋友家参观后,自己也想把老宅子给重新建一番。万总的宅基地面积不是很大,面宽9.5米,进深12米。设计总建筑 面积不能超过300平。布局方面要实用。
万总和我们沟通了一段时间后,工作人员也大概了解了万总对设计的一些需求。方案设计师根据万总所提供的材料,进行方案合理费划分。布局如下:
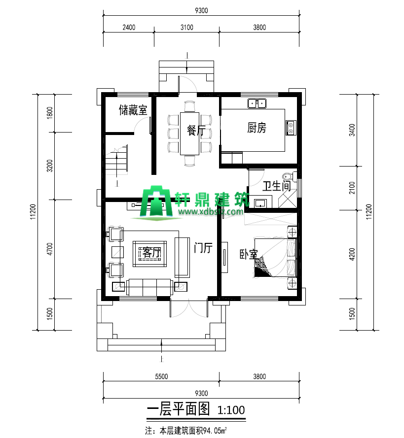
一层:客厅、卧室、卫生间、厨房、餐厅、储藏室。
二层:家庭活动室、卧室2、卫生间、书房、阳台
三层:卧室2、卫生间、茶室、大露台
一层平面图

二层平面图

三层平面图

此款方案最大的亮点是露台的设计,总面积虽然不大,但露台去占了三楼的大部分空间。万总的爱人很喜欢露台大一些。可以方便在露台烧烤或者种一些自己喜欢的植物。是一个爱花草的达人。一直三楼一共五个房间。还带有茶室以及书房。一楼厨房还留有后门,并且加了一个小门楼,有没有很好看呢。
正面效果图

侧面效果图

鸟瞰效果图

背面效果图

外观整体风格是欧式风格。建筑总高度(到屋脊高度):11.741米,建筑面积:260.8平方米,一层层高3.6米,二层层高3.3米,三层层高3.3米。
整体也是以暖黄色色调为主。暖暖色调从里到外看上去都是很温馨的。就连窗套都和整体呼应是那张暖色色调。别看面积不大 ,整体房屋欧式风格的搭配在配上这些欧式的构件简直美美哒。设计师和黄色谈讨过好几种方案颜色的搭配,经过家人的几次对比,最终选择的这款图。
施工图

图纸包含建筑施工图,结构配筋图,排水施工图,电气施工图,外观效果图。一整套的施工图。只要交到施工方手中就可以即可施工。
有时候客户看到平面图后,经常问,你们都公布出平面图,我直接给施工方就可以啦,还用设计了吗。其实这样的想法是错误的,平面图只是施工图一个小小的一点。施工图中的详细细节点都是很详细,数据的尺寸也是很到位的。根本不是施工师傅看看平面图,就可以能造出的造型。建到一半,师傅就想不出如何造上面的造型,或者户型窗户尺寸如何弄,斜屋顶怎么施工。这样的案例经常发生。一套好的施工图,方便了施工也能建出完美的住宅!
实景图
