四川安岳县李总三层农村="://www.lemeizhai.com/index.asp" target="_self" title="自建房设计" style="font-family: 微软雅黑, "Microsoft YaHei"; font-size: 18px;">自建房设计
设计师为李总设计的="://www.lemeizhai.com/Picture.asp?PicClassID=91" target="_self" title="三层别墅">三层别墅详情:是一款不到300平的三层农村自建房,布局设施完善,卧室较多,可以满足一大家人的生活需求。李总老家在四川安岳,现在家家户户都开始盖新房了,自己也想盖一栋三层设计。但面积有限,看过很多款式不是自己想要的,不理想,所以单独设计一款和我自己吻合的户型。施工也会少很多的麻烦。
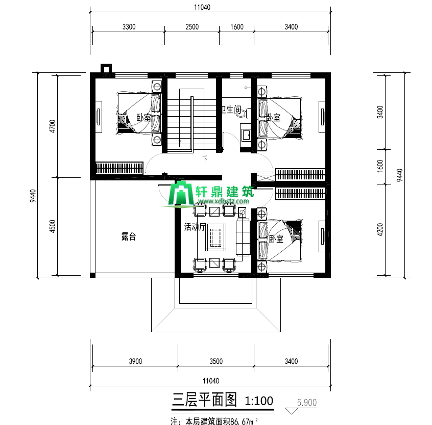
此款设计总建筑面积298.19平方米,一层面积104.22平方米,二层面积107.30平方米,三层面积86.67平方米。
一楼:门厅,大厅,卧室*2,洗澡间,储藏室,卫生间,后门,厨房及侧门
二楼 :卧室*3,书房,活动厅, 卫生间
三楼:卧室*3,书房,活动厅,卫生间,露台
一层平面图

二层平面图

三层平面图

对于外观效果图设计,李总喜欢中式以及欧式结合的设计。设计师做了几稿方案,和李总以及家人沟通了多次。最终了解了李总对房屋外观的一些需求。家人定稿风格为欧式设计。原因是老家已经几栋在建中式的了(#^.^#),与众不同一些。
外观造型整体高度为12.4米,一层层高3.6米。二层层高3.3米。三层层高3.3米。
一楼底部采用人造文化石,一至三楼则是淡黄色面砖。门口两个大柱子,特别的显眼。屋顶再搭配蓝色的琉璃瓦,整体看上去,层次感递进。是一款不错的三层设计呢。李总把初稿给老人看了之后,老人也是非常的喜欢。
正面效果图

侧面效果图


鸟瞰效果图

背面效果图

图纸包含建筑施工图,结构配筋图,电气施工图,排水施工图,外观效果图、全套的施工图。放心建房哦。
