很多客户让我推荐30万左右能建一款什么类型的别墅。这款是刚刚为江西李总设计的二层别墅,砖混结构,主体造价在30万左右。风格为欧式设计。经济实惠,外观也十分的大气。
李总是通过网页联系到我们="://www.lemeizhai.com/PictureShow.asp?PicID=1364&PicClassID=88" target="_self" title="轩鼎建筑">轩鼎建筑,想在老家建一栋二层洋楼。现在家乡的建设越来越好,越来越多的年轻人选择回老家。李总这款房屋面宽13,进深12.是个方方正正的户型。
李总和设计师沟通多次,设计师也是反复修改了几稿后,最终定稿此款方案。一楼卧室*3,卫生间*2,客厅,餐厅,厨房,储藏室。二楼卧室*4,卫生间*2,书房,客厅,阳台。 是一款布局实用性非常强的户型。
入门后是宽大的客厅,紧接着是餐厅,厨房在右侧并有小后门方便处理生活垃圾。客厅左右两侧分别是卧室,右侧是老人房带有独立的卫生间,左侧是两个客房。以及一个收纳杂物的储藏室。
一层平面图

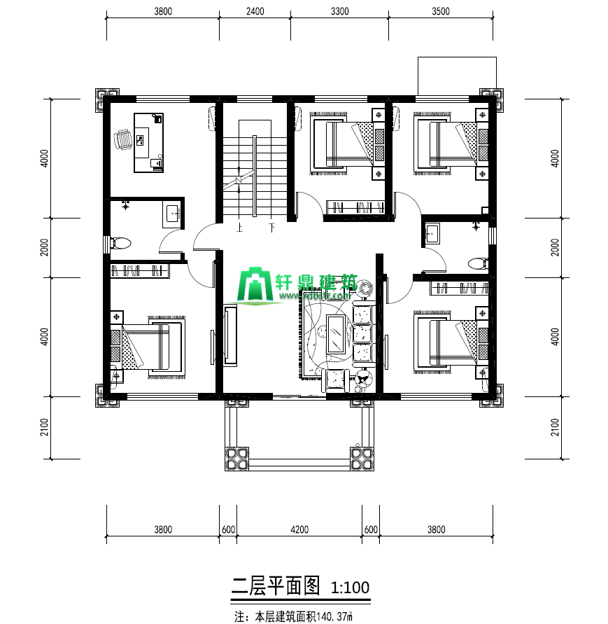
上二楼后引入眼帘的则是客厅以及休闲阳台,种花草晾晒衣物都是极好的。午后阳光也能洒满整体客厅。左侧是卧室卫生间以书房。给孩子打造了一个极优的生活学习环境。右侧三个卧室带卫生间,家里客人多了,也不用担心住不下的问题了。
二层平面图:

主体风格选择的是欧式设计。主体是砖混结构。造价30万左右的朋友可以多看看这个户型,一提欧式设计,大家想到的肯定是太多的欧式构件,繁琐的线条设计。担心施工方不会施工等问题。而这款恰恰避免了这些问题。方方正正的外观,只有门柱上有几个欧式,也是可以建材市场买到的,造型也不是很浮夸的设计,非常适合建在农村。看一眼就爱上的户型。并且这种设计也不过时。
正面效果图

侧面效果图

鸟瞰效果图

背面效果图

李总现在在老家亲力亲为,自己购买材料,找施工方施工,干劲十足。期待李总的="://www.lemeizhai.com/Picture.asp?PicClassID=88" target="_self" title="二层自建房">二层自建房。