今天和大家分享一款现代复式设计别墅,这是为福建陈总定制的一款方案,一起欣赏一下吧。
陈总喜欢现代风格设计,老家有一块宅基地,常年在外经营生意,像今年在老家把之前荒废的宅基地盖一栋别墅。陈总说,去过村里很多家很老乡的设计,什么样的风格都有,挑花了眼。现在现代的设计渐渐流行起来, 自己就想着也搞一栋现代风格="://www.lemeizhai.com/Picture.asp?PicClassID=94" target="_self" title="四层别墅">四层别墅吧。但现代的设计,村里没有一家弄,又担心建的不好看,所以请我们="://www.lemeizhai.com/index.asp" target="_self" title="轩鼎建筑设计">轩鼎建筑设计设计一番。
陈总家里人口多,所以敲定为四层设计。主要的颜色为乳白色真石漆就可以。此款房屋面宽八米,进深十六米。是一个长方形的设计。下面一起看下这款的布局如何吧。
一楼中规中矩的设计,为客厅,厨房,餐厅,储藏室,卫生间。本层建筑面积为123㎡。
一层平面图

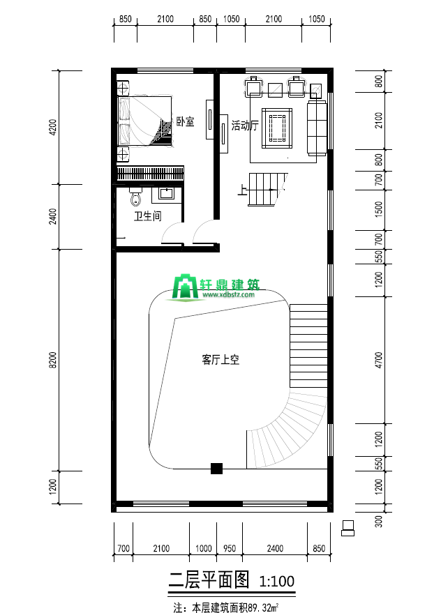
二楼则是复式设计客厅,活动厅,卧室带独卫。本层建筑面积为89.32㎡。
二层平面图:

三楼为起居室,卧室*2,以及一个配套齐全的卧室+书房+衣帽间+卫生间,阳台,满足了一家人的生活起居需求。本层建筑面积为125.33平方米。
三层平面图:

四楼是一个休闲区域,卧室,KTV,卫生间,活动室,露台。一家人可以在四楼唱歌下棋,欣赏风景。本层建筑面积为83.36㎡。
四层平面图:

此款风格从外观看上去一种沉稳端庄的气质。没有太复杂的颜色。几乎为乳白色的真石漆贯穿整栋别墅。平顶的设计,更加大气。整体房屋高度16.8米,一层为4米,二楼至四楼为3.3米。每层用的是玻璃栏杆,更具现代气息。看惯了罗马柱和斜屋顶的设计,这种的房型有没有眼前一亮的感觉呢。最重要的是省施工费用,农村队伍也是非常易于施工的。是一款年轻人喜欢的风格哦。
正面效果图

侧面效果图

鸟瞰效果图

背面效果图

施工图


有没有喜欢现代设计的朋友呢~