下面这款是江西徐总的="://www.lemeizhai.com/Picture.asp?PicClassID=91" target="_self" title="三层别墅自建房" style="font-family: 微软雅黑, "Microsoft YaHei"; font-size: 18px;">三层别墅自建房。外观非常的大气,整体是欧式风格。一起来看看吧。
徐总的地皮非常大,有很充足的场地来建设自己的房子。方案设计师给徐总设计的这款户型面宽为19.7,进深为13.9,框架结构。室内的采光非常好,布局也是合理的运用,没有一点 浪费空间。
首先,进入大厅右侧是餐厅厨房以及客厅,正对大厅的是堂屋,卫生间和洗衣房分开设计,使空间不拥挤。值得一提的是,此款是带有观光电梯的哦,不仅方便了主人,还能看看村里的风景,是非常不错的呢。右侧是两个卧室,一个老人房以及一个客房。
一层平面图

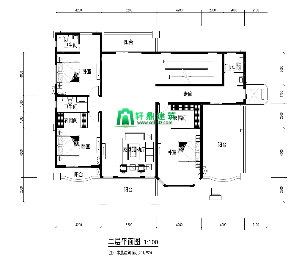
从楼梯上二楼后,是一个家庭活动厅,从电梯上二楼,右边是卫生间,左侧是一个推拉门的阳台。前面是一个长长的走廊,走廊的一侧是一个带有卧室的衣帽间。客厅前后都是阳台,通风效果极佳。阳光好的午后,在客厅小坐,风徐徐吹来,简直是太幸福的一件事了。二楼一共三个卧室。
二层平面图

三楼,最多的空间就是露台以及阳台了。徐总爱花,想在露台上养多种花。左边是主人房,卧室书房卫生间以及衣帽间一体化,从卧室推开门就是露台,连个露台相连,可以到达KTV房间。再往右边走,是卧室。
三层平面图

效果图的风格采用的是欧式设计。是一款高端的三层自建房。从外观看,豪华的欧式构件,以及房屋整体层次感,建在村里都是倍有面子的。门厅的两个大柱子是格外的显眼,从侧面也能凸显出这个大气的门廊设计,点缀大气的圆柱柱,凸显整栋别墅气质。超大的落地窗设计,无疑给这个房子加了很多分吧,沉稳端庄。
整体高度15.7米,一层4.2米,二层3.6米,三层3.3米。颜色是淡淡的黄色,很温馨,屋顶是蓝色的砂浆卧瓦。效果方案改了好几稿,最终徐总敲定了此款。建在村里,徐总说这样的设计他还是第一家。效果图村里的乡亲们也看过,赞不绝口。
正面效果图

鸟瞰效果图

侧面效果图

背面效果图
