四川眉山江总有块地皮宽12mx进深30m,想设计一款高端的="://www.lemeizhai.com/Picture.asp?PicClassID=91" target="_self" title="三层农村房屋" style="font-family: 微软雅黑, "Microsoft YaHei"; font-size: 18px;">三层农村房屋设计。整体还需要规划院子,不知道如何设计才能好看。自家兄弟设计的是中式款式,自己的房屋定位欧式设计,和兄弟有点区别。
设计师开始设计了解到江总最初想设计四合院,四合院的投入资本有太大,现在村里开始流行建欧式设计,自己也想着跟跟村里的步伐,设计一款欧式。家里人口较多,所以功能要齐全。配备电梯房,布局采光等要实用。
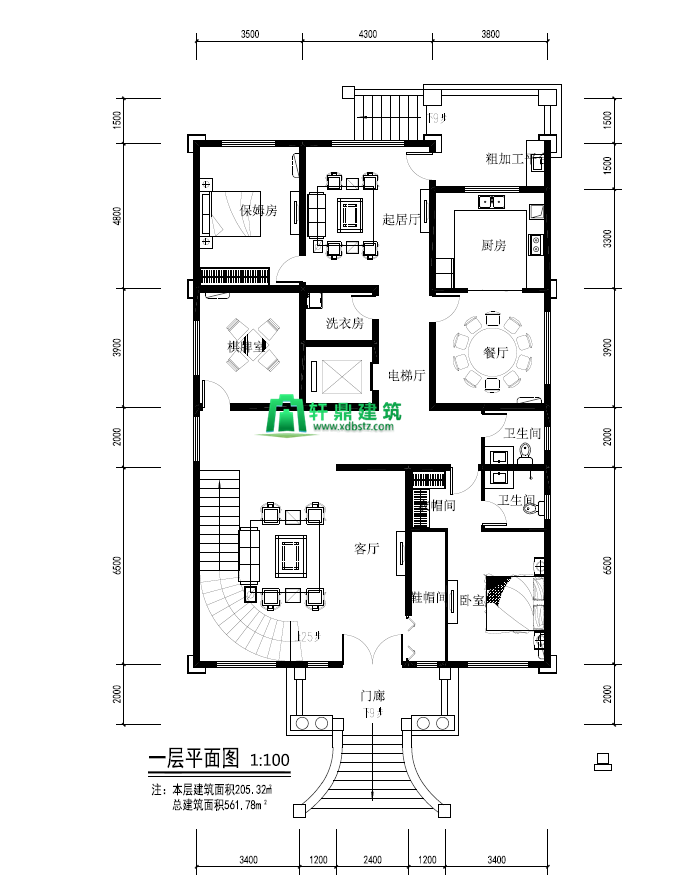
门口是一个楼梯,共9步,进入门廊。引入眼帘的是客厅,以及旋转楼梯,右边是一个推拉门的衣帽间,平常的进出门的鞋子可以放在这个位置,很有隐蔽性。往前走,是一个休闲娱乐的棋牌室,平常家人也都在外打工,只有过节的时候家里人才能聚齐,打打牌,增加一下家人的感情。在往里走是一个多功能的卧室,配有衣帽间以及卫生间。餐厅厨房并列。电梯洗衣房。最里面则是一个保姆房和一个小的客厅,并且留有后门,很好的处理了生活的垃圾。
一层平面图

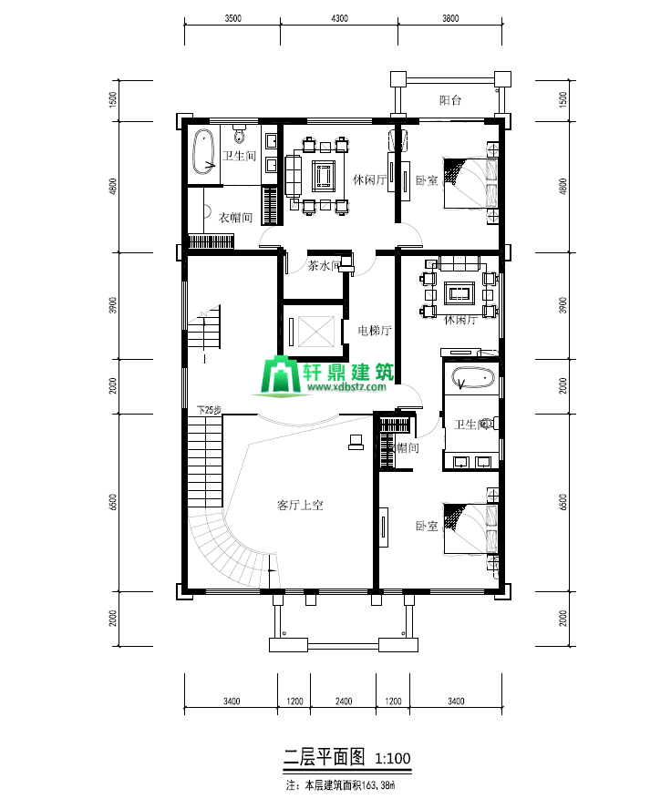
从楼梯进入二楼,一共25步,是一个旋转楼梯,整个的大厅瞬间高大起来,不管从上还是从下看都是非常的气派。依旧是一个多功能卧室,衣帽间卫生间,对面是一个小的休息客厅。从电梯左侧的门进入,是一个休闲厅,卧室,阳台以及衣帽间卫生间组成的多功能房。
二层平面图

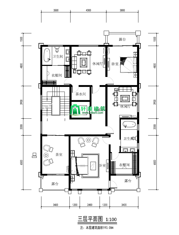
三楼,茶室对着露台,品茶的同时还能欣赏美景。另一侧则又是多功能设计,卧室,衣帽间等。电梯出来后,左侧依旧和二楼相同。都是一个多功能的休息生活区域。
对于这样一个方案,大家有没有很羡慕呢,反正我是非常羡慕。人生最快乐的事,也不过城里有房,老家有房,车子会开,钱够花,父母身体健康。
三层平面图

欧式设计,下面分别效果设计师,做的夜晚和白天的效果图供大家欣赏哦。
正面效果图


第一眼,看到这个图的时候,就被这气派的外观所震撼住了,门口是竖立着四个大圆柱,每个细节都有欧式构件的组成,超大的幕墙设计,以及二到三楼的四根方形柱子,都是十分的震撼,三楼两侧的阳台罗马柱对应,一种视觉美。虽然看着复杂,但这些都是可以在建材市场买到的,施工方也是非常的易施工。整体房屋高度一层3.6米,二层3.3米,三层3.3米,总高13.995米。
房屋的底部是用淡黄色的人造文化石,整体较多的是白色的真石漆以及涂料而成,屋顶再搭配红色的琉璃瓦。
侧面效果图


背面效果图

施工图:
