大家一起欣赏一下兰州市孙总的="://www.lemeizhai.com/Picture.asp?PicClassID=88" target="_self" title="两层自建房" style="font-family: 微软雅黑, "Microsoft YaHei"; font-size: 18px;">两层自建房的方案吧。宅基地有限,又不知道怎么建,又不能超过300平,确实是一件很让人头大的事情。但这完全的解决了这些问题。面宽13-14,进深9-10的客户都可以看一下这款哦。造价也不高,砖混结构,经济实用型。
孙总的这款门厅进入正对堂屋,左边依次是卧室和卫生间。右边 是一个大客厅,平常孩子玩耍都是很有空间的,洗衣间在楼梯的旁边,棋牌室,餐厅,厨房,储藏室并列。
一层平面图

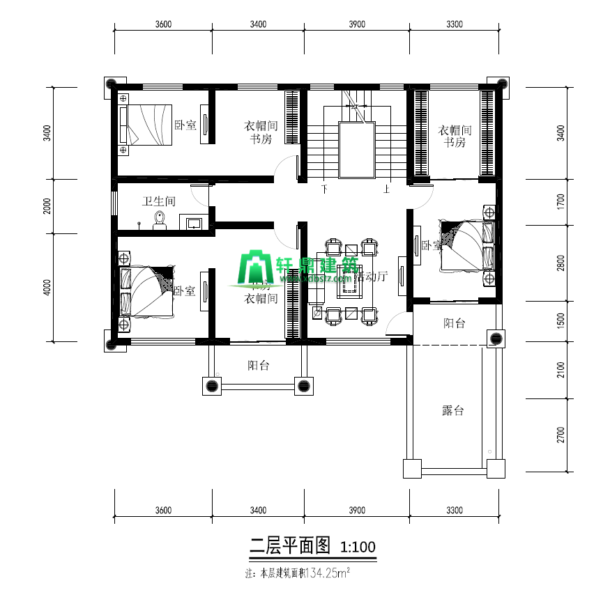
进入二楼,是小的客厅,主要 是生活起居,共有三个卧室,每个卧室带有衣帽间;一个卫生间。阳台两个,露台一个。欣赏风景是足够的啦。
二层平面图

此款风格为经典两层欧式设计风格。地上2层,建筑总高度(到屋脊高度):10.056米,建筑面积:290.41平方米。一层层高3.6米,二层层高3.3米。
孙总之前看好我公司的另一款作品="://www.lemeizhai.com/PictureShow.asp?PicID=1358&PicClassID=88" target="_self" title="两层自建房" style="text-decoration: underline; margin: 0px; padding: 0px; word-break: break-all; color: rgb(51, 51, 51); background-color: rgb(255, 255, 255); font-family: 微软雅黑, "Microsoft YaHei"; font-size: 18px;">D727。在这款的基础上,效果图设计师为孙总进行了量身的修改。外观不管从哪个角度看上去都是非常的气派大气。门厅两个大柱子更是点睛之笔。侧面的偏房二楼是一个休闲的平台,罗马柱相连。色调是属于暖色系,让整个外观都显得温馨十足了许多。
正面效果图

鸟瞰效果图

房屋的背面采用的是多窗的设计,既保证了室内的采光,也有了美观。搭配上红色的卧瓦,十分的好看。
背面效果图

图纸包含了建筑施工图,结构 配筋图,排水施工图,电气施工图全套的施工图纸。给很多农村施工方节约了大量的时间,细节都是非常的到位,施工方再也不用担心看不懂图纸了。
施工图设计:
孙总正在施工,图纸收到后,好多邻居都去看图纸,大家都期待孙总主体完工,肯定很漂亮。