湖南蓝山县杨总2020年9月通过网页咨询,联系到="://www.lemeizhai.com/index.asp" target="_self" title="轩鼎建筑">轩鼎建筑。想做一款五层="://www.lemeizhai.com/PictureShow.asp?PicID=1386&PicClassID=94" target="_self" title="农村自建房">农村自建房。老家有个乡亲做的他比较喜欢,所以想做那款得基础上有所改进。
杨总老家宅基地

杨总的宅基地面积比较大,但需要留个院子,所以房屋占地面积为11.3x15.3米,157.55㎡。一层建筑面积为157.55㎡,二层建筑面积为102.34㎡,三层建筑面积为154.61㎡,四层建筑面积为154.61㎡,五层建筑面积为100.64㎡。
进门是一个大客厅,平是接待客人,孩子玩耍都能有足够的空间。两个卧室,一个为带独立卫生间的卧室方便老人的日常起居,不用爬楼梯,另一个给客人用。餐厅厨房,餐厅后面留有后门,以便处理生活垃圾,或者前往后院。小的储藏室平时的工具都可以放在这里。
一层平面图

二楼是生活起居,有个小的活动厅带阳台,午后的阳光撒进,生活很是惬意。复式的设计,会是整个一楼的客厅更加的大气,两个卧室也使这个不到100平方的二层空间显得不拥挤。
二层平面图

三楼的卧室渐渐多了起来,平是亲戚来了,杨总说一般都会让客人去三楼,四个卧室,两个卫生间,三个小型阳台。不管住在哪一面都能欣赏整个村的风景。
三层平面图

三个卧室,带一个大的客厅。两个卫生间,三个小阳台。与三楼的设计类似。
四层平面图

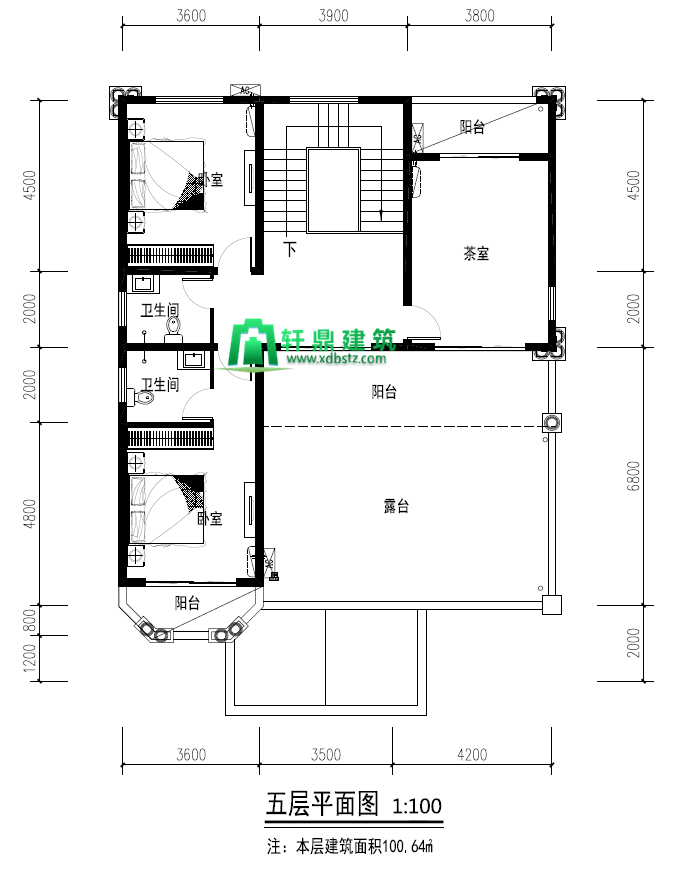
两个卧室,两个卫生间,茶室,小阳台,大露台。娱乐休闲的好地方。茶室左右都有推拉门,小的阳台可以看到后院,右边是大露台,杨总爱花,所有的花杨总说房子建好后,他会全部放在五楼的露台,平时欣赏欣赏,心情都好。和家人晚上烧烤,玩耍,白天晾晒农物,衣物都是很方便的。
五层平面图

确认好方案,外观效果图根据杨总的描述,对外观效果图进行了设计。整体高度19.617米,一层层高3.7米,二层层高3.3米,三层层高3.3米。四层层高3.3米,五层层高3.0米。是一款经典的欧式设计。
正面效果图

侧面效果图

鸟瞰效果图

背面效果图

施工图设计

便于施工,拿到图纸后,施工方根据图纸施工,有不懂的可以随时咨询设计师,售后有保障。杨总图纸拿回家后,立马找了施工方已经开始动工啦。