大家好,今天带大家看一下这款2020年上旬为广州增城区温总设计的="://www.lemeizhai.com/" target="_self" title="四层欧式设计">四层欧式设计吧。
温总设计房屋的需求如下:一层老人房厨房,餐厅,二层商品房,三楼同二楼,四楼两个客房。方案设计根据温总发来的草图宅基地以及简单的需求,做了以下方案稿:
客户需求:

宅地基草图:

房屋建筑面积为493平方,这样的一个面积,有没有很羡慕呢,小编很羡慕了。面宽12.6米,进深12米,框架的结构。
从门厅进入,是一个超大的客厅,显得一层很是大气,小孩子也可以在客厅玩耍,不显得拥挤。左边是带独立卫生间的卧室,给老人居住,省去了爬楼梯的麻烦,餐厅和厨房并列,厨房留有后门,方便后门的进出,楼梯处有洗衣房,小型储藏室,卫生间,小小的角落,一应俱全。
一层平面图

进入二楼,是生活起居,客厅以及四个卧室,其中一个带有独立的卫生间,一个公共卫生间和洗衣房,客厅带有推拉门的阳台,可以随时欣赏美景。
二层平面图

三楼设计和二楼同步。
三层平面图

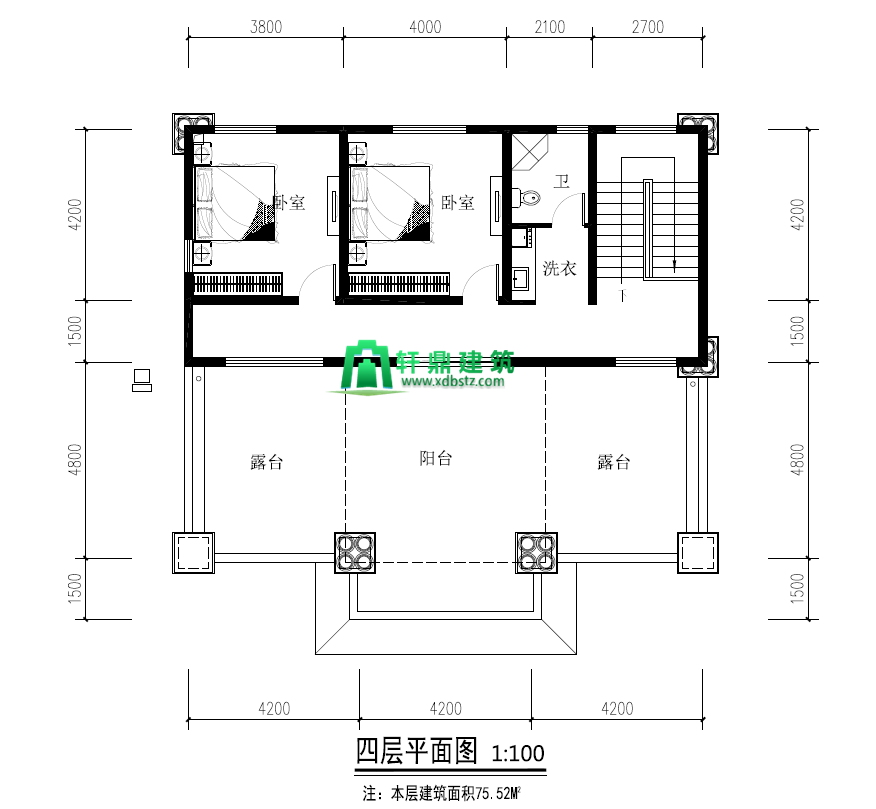
四楼两个卧室以及公共卫生间和洗衣房。超大露台,平时组织和家庭聚会,烧烤啊,娱乐啊,很是增进家人的关系,也可以养花草。这样的露台,随意发挥。
四层平面图

中国人将就方方正正,这个方案的设计则是如此,方方正正的户型。一共四层,总高度15.6米,一层3.9米,二至四层为3.5米。屋顶搭配的是红色的琉璃瓦,整体贯穿温馨的淡黄色,建在农村里面,是非常受大家欢迎的。欧式设计元素随处可见,前后左右的门窗,以及落花浮雕等,都是欧式设计风。设计的素材,在建材市场都是可以随处买到的,业主也完全不用担心买不到材料的烦恼。
正面效果图

侧面效果图

鸟瞰效果图

背面效果图

在城市里呆久了,有时候就特别想回农村,不管在城市还是农村,都有一处家的住所,在疲惫,也有一盏灯是为你我而亮。
施工图设计

