2020年底。广州梁总通过微信联系到="://www.lemeizhai.com/index.asp" target="_self" title="轩鼎建筑农村房子">轩鼎建筑设计工作人员,之前在我公司网站看了很久的作品,对编号="://www.lemeizhai.com/search.asp?SearchType=Software&imageField.x=0&imageField.y=0&SearchKey=574" target="_self" title="农村户型">D574农村户型图比较感兴趣,但因宅基地的原因,想在此基础上做一些改动,房子的右侧再加一层作为厨房,宽度35.,进深5.9左右。单独开门,做厨房。
梁总在老家海南省盖房,不喜欢厨房放在主房内,所以需要改进。和工作人员沟通过初步细节后,由方案设计师进行设计。
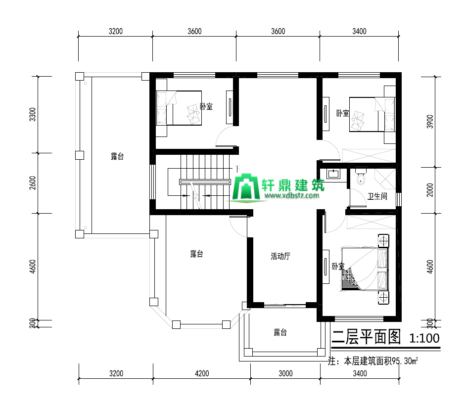
此款的户型也和D574极为相似,面宽14.04米,进深11.04米,总体建筑面积为231.74平方米。占地136平。是小户型的首选哦。
一层两个卧室,老人房以及客房,十分的方便,超大的客厅设计,一点都不用担心屋内的采光问题。还配有悠闲娱乐的棋牌室以及茶室,平常家里来客,可以在此处招待。一个公共的卫生间。左侧是厨房和餐厅。因为梁总家里不想放在主房内,所以放在了一侧。

二层三个卧室,一个公共的卫生间以及小的会客厅。两个大露台。别看小小的户型,竟然有五个卧室呢。
梁总喜欢欧式建筑,颜色需要沉稳一些,所以设计师搭配的主调颜色为浅咖色,这个颜色永不过时,屋顶的配色也很低调,黑色的琉璃瓦,到屋脊高度为8.944米,一层3.6米,二层层高3.3米。从每个面看都是很高端大气的户型。看不出这是一款不到250平的户型吧。欧式简约风格在农村建起来,绝对令人羡慕。还没行动的小伙伴,速来围观这款农村自建房吧。
正面效果图

侧面效果图


鸟瞰效果图

背面效果图

