19年3月,四川泸州的汪总通过老家的朋友的介绍,在我公司做了一套三层的="://www.lemeizhai.com/" target="_self" title="自建房">欧式自建房,一起来看看吧。
汪总的朋友在我公司做的自建房图纸已经完工,汪总回老家看到后,很喜欢,正好自己也准备建房子。便和我们的工作人员取得了联系。
汪总的这款户型方方正正,面宽13.8米,进深13.75米,面积在426.38平方米,占地面积为180平,造价预算55W左右。有类似宅基地的正准备建房的朋友可以参考一下这款哦。
一层的建筑面积为166.2平方米,进入门厅,首先映入视线的就是超大的客厅空间,这个客厅空间和二楼的复式设计,使整个一楼显得大气很多。左侧是一个老人房带独立的卫生间,一个公共卫生间以及留出一个洗衣机的位置。棋牌室休闲娱乐,敞开式厨房,餐厅;留有后门,可以去往后院,以及方便处理生活垃圾。
一层平面图

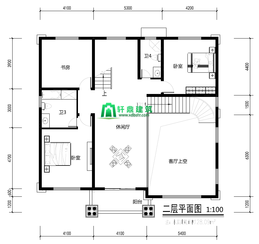
旋转楼梯到二楼,复式的设计,在二楼看一楼客厅,会更加大气。两个卧室,一个书房,两个卫生间,一个小阳台。
二层平面图

三楼有一个多功能卧室,带有超大的衣帽间以及卫生间。一侧配有书房,以及右侧带有卧室和公共的卫生间。还配有30多平的大露台。欣赏风景,晾晒衣物都是非常适用的。
三层平面图

外观参数:到屋脊高度为13.192米,一层层高3.6米,二层层高3.3米,三层层高3.3米。
外观效果图为汪总设计的是欧式风格。屋顶搭配的是红色的琉璃瓦,一楼到三楼贯穿统一的暖色系淡黄色真石漆,十分的温馨。
正面效果图

侧面效果图

鸟瞰效果图

背面效果图

看了这款介绍如何呢,是不是很心动呢。这款户型非常适合大面积的业主朋友们。