很多客户问过最多的咨询就是,如何建好看,怎样建不过时等问题。房子不仅室内要住的舒适,室外也要大气上档次。所以越来越多的客户开始翻建自己的房屋,各式各样的风格也被大家所认可。
邹总家住湖南,通过朋友介绍联系到的我们轩鼎 建筑公司,想在老家盖一栋="://www.lemeizhai.com/PictureShow.asp?PicID=1054&PicClassID=91" target="_self" title="三层自建房">三层自建房, 总体的建筑面积很小,让他很是头疼。所以想请设计公司一番。邹总的这款户型面宽仅不到9米,进深比较大,所以设计起来,也是有一定的难度,外观好看,户型实用。
为邹总设计方案的是一位具有丰富经验的设计师,从交流到定稿仅仅用了两天的时间。
进入大门,是堂屋,左边是两个卧室,都带有飘窗;餐厅和厨房相连,是敞开式厨房,带有烟囱,这样使空间的实用性上更加突出,卫生间也是干湿分离的设计。
一层平面图

二楼是生活起居,只有100平,确有三个卧室,一个书房,小的客厅带阳台,采光不错。
二层平面图

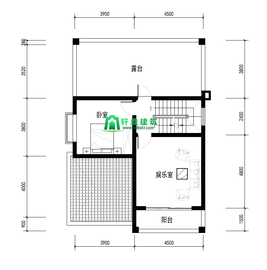
三楼建筑面积54.4平方,属于一个休闲娱乐的地方,一个卧室,露台以及娱乐室。
三层平面图

确认完成后,由外观效果图设计师进行和邹总对接。邹总想要的风格是农村田园风,红色的琉璃瓦等。
通过和邹总的沟通,设计师为邹总设计的是屋顶搭配的是红色琉璃瓦,一楼黄色的面砖,二楼到三楼则是真石漆颜色,阳台用的是铁艺栏杆,既好看也省了很大的施工费用。
总体高度11.367米,因考虑到前后邻居,所以没有做太高。一层3.5米,二层3.3米,三层3.0米。
正面效果图

侧面效果图

鸟瞰效果图

背面效果图

通过回访,邹总说有几个乡亲看了邹总的设计方案,也感觉不错,邹总建起来,看看效果,也要在我公司设计图纸。
轩鼎建筑设计,专业打造您的私人美宅!