年初,安徽怀远的易总,找到我们轩鼎建筑,让我们为他设计一款既能体现安徽韵味又有自己独特设计的="://www.lemeizhai.com/Picture.asp?PicClassID=91" target="_self" title="三层别墅设计图">三层别墅设计经过几天反复的沟通,了解易总想要的设计布局,效果特点的初步想法。设计师开始为易总独家设计:
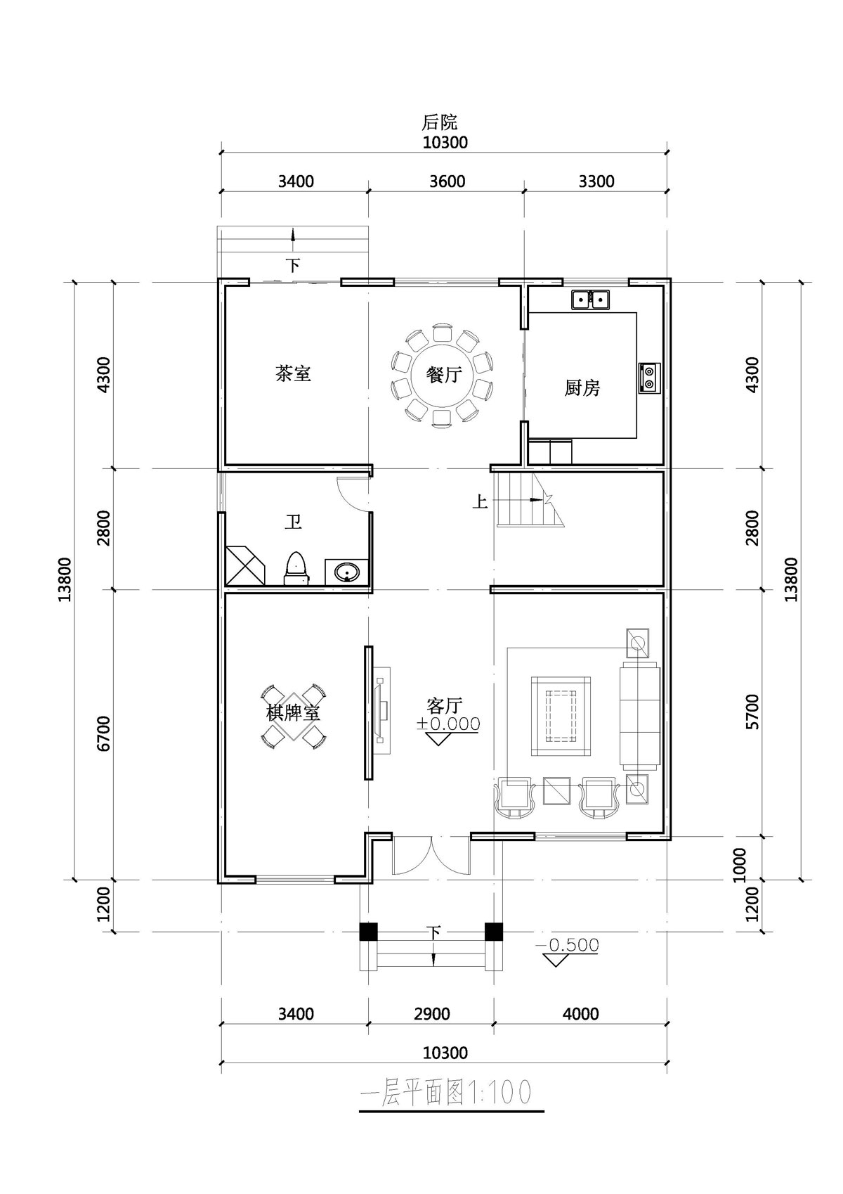
一层方案:

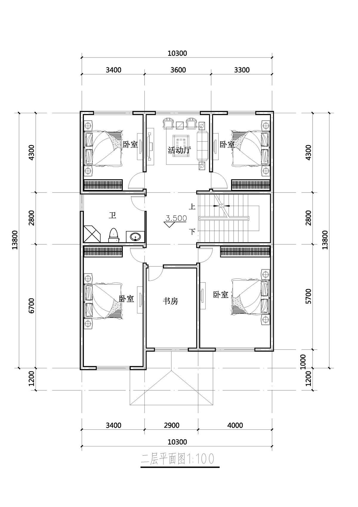
二层方案:

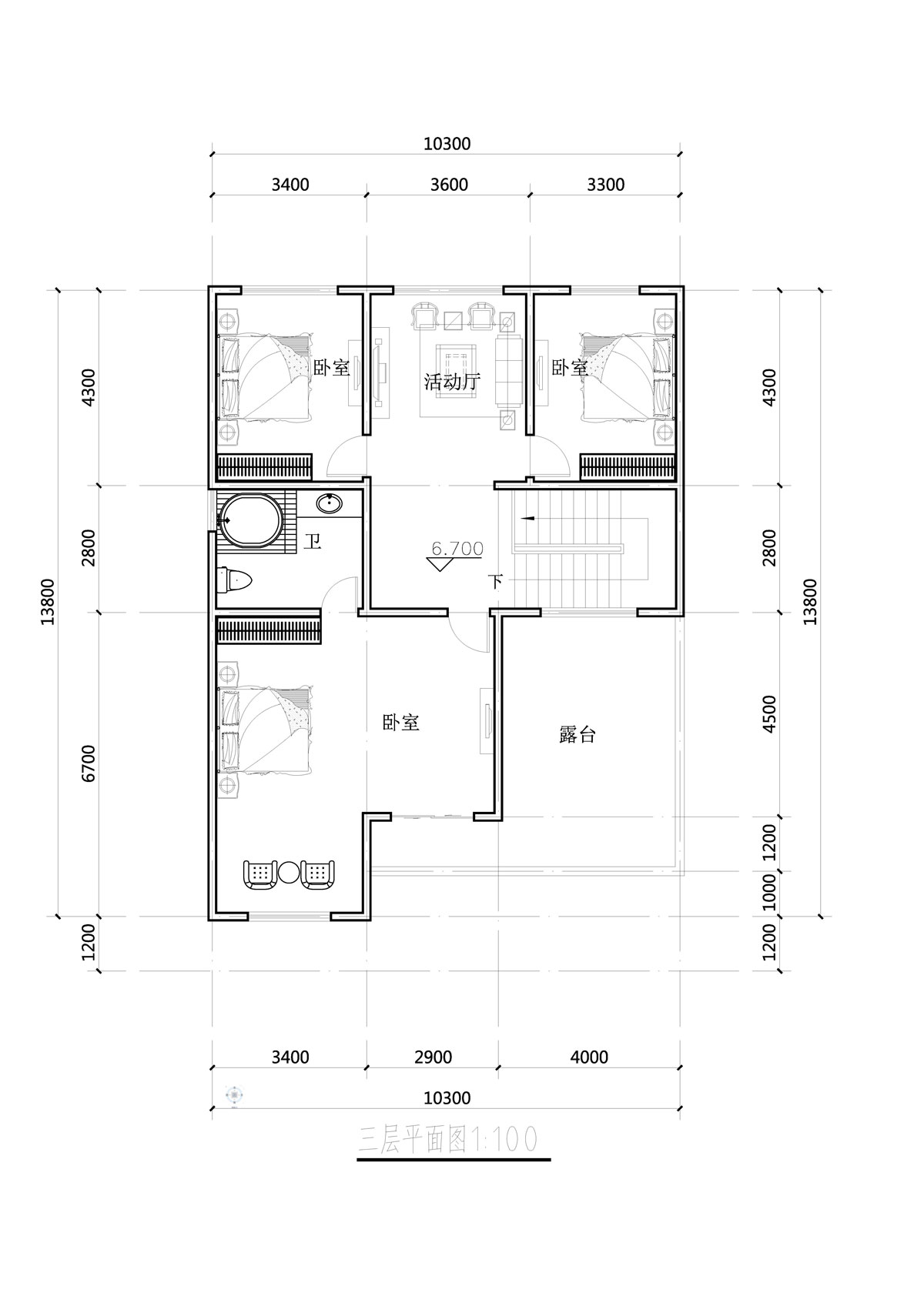
三层方案:

经过几个工作日的沟通,业主和家人的商量,修改了 几稿方案后。最终确认了此款三层中式方案。
在外观上,业主也有自己的见解:如整栋房子的材质,造型;院子和整个房屋的搭配,绿化 ,以及如何做一个气派的大门。希望整栋房子的外观 低调大气。
了解业主需求后,外观效果师后期设计起来也就轻松了很多, 大家来看看这款新中式风含小院的最终稿吧:

小院设计了池塘,亲水平台,栽了很多的绿植,在工作闲暇之余,喝喝茶,赏一下池塘的鱼儿,看看院中花花草草,真的是惬意的很,这份安逸是城里所追寻不到的呢~
图一小院视角:

图二小院视角:

图三大门视角:

在施工图设计上,设计师也是为客户的预算做了深思的考虑。建筑,结构,排水,电气,设计师一起合作,几个工作日三层新中式风施工图纸便全部完成。
现在越来越多的成功人士开始返乡设计别墅,="://www.lemeizhai.com/" target="_self" title="农村自建房">农村自建房已经是趋势,未来新农村的建设会越来越好。