大家越来越喜欢简单不复杂的东西,房子也是一样的。近几年现代简约风格也渐渐的流行了起来。
去年年底 湖南的邓总通过朋友的介绍找到我们,想设计一款三层现代感十足的="://www.lemeizhai.com/Picture.asp?PicClassID=91" target="_self" title="农村自建房设计">乡村自建房。初步了解到,邓总在广西南宁工作,想在湖南邵阳老家盖一栋三层的自建房。对比过很多家的网站,最终经过朋友的介绍,选择我们="://www.lemeizhai.com/index.asp" target="_self" title="农村自建房设计">轩鼎建筑设计公司。
邓总在设计之前,就已经做了很多的功课。在网上搜索过很多的现代风格的设计,喜欢的风格,门窗的样式,都很详细的和我们前期工作人员沟通的很深入。邓总的面积在120平左右,设计师钟工了解到业主需求后。为业主设计了如图的三层布局方案:
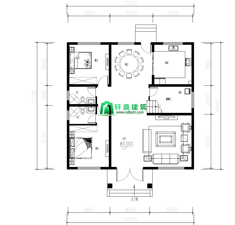
图一:

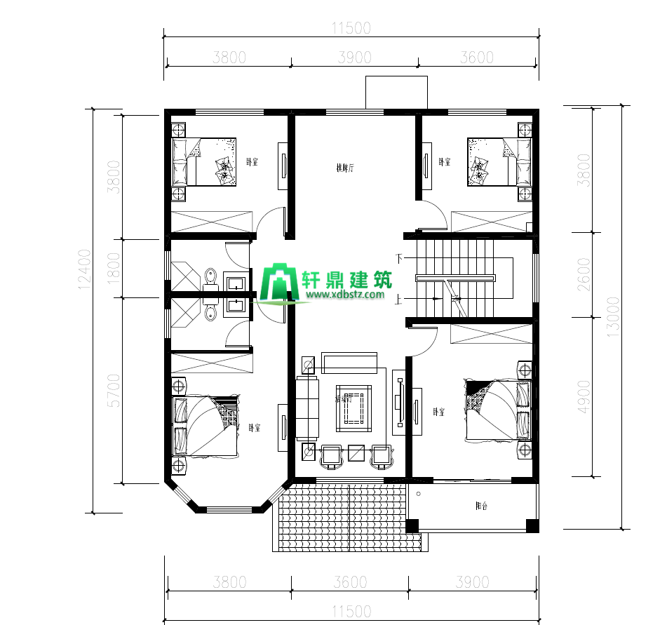
图二:

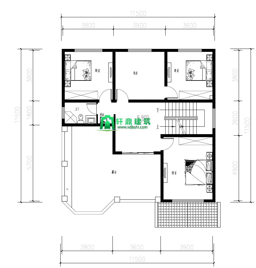
图三:

整个设计,三层的建筑面积在367.98㎡。九个大卧室,满足了多人居住的环境。一楼设计了两个卧室,可以供老人使用。二楼带有棋牌室 ,可以一家人打牌聊天。三楼设计了书房,以及比较大的露台。晚上一家人露台吹吹风也是极好的呢!
在外观设计上,因为邓总之前规定了 风格设计。整栋房屋的设计我们采用了常见的乳白色涂料+乳白色面砖,以及搭配上灰蓝色的琉璃瓦。整个的房屋显得简洁又不失大气。
正面效果图:

鸟瞰效果图:

侧面效果图:

背面效果图:

施工图方面,整个房子的高度12.829米,一层层高3.6米,二层层高3.3米,三层层高3.3米。

距离给邓总设计好图纸差不多一年了。这一年中,也和邓总保持着联络。邓总遇到图纸上的问题也是随时的咨询我们。下面来看看邓总的豪宅吧!
