今年二月,广东欧总通过电话方式联系到我们。简单沟通过后,与工作人员互加了微信。欧总需要一款三层宽12mX长15m的户型图,客服小姐姐推荐了几款成品户型,对于尺寸 欧总有自己的要求,便选择一对一设计一款属于自己的豪宅。

在平面方案的设计上,一楼方案设计了一个房间,供老人使用。二楼设计了一个多功能房间,衣帽间,卫生间,书房,卧室为一体。复式挑空,旋转楼梯的设计。整个方案瞬间大气起来。

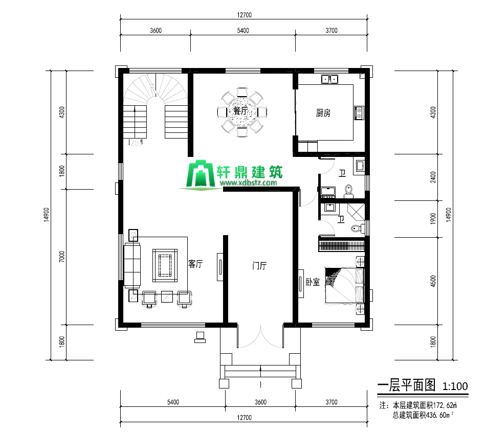
方案一:

方案二:

方案三:

在外观设计上,欧总也有很多自己的想法,大家来看看这个设计吧。



正面效果图:

侧面效果图:

俯视效果图:

背面效果图:

此款效果图的色彩使用了红色砂浆卧瓦,搭配米黄色面砖以及条形面砖错缝分隔。整个效果欧式风格满满~
施工图的设计高度在12.7米,一层层高3.7米,二层层高3.3米,三层层高3.3米。屋面为现浇混凝土屋面,砖混结构设计。




