新="://www.lemeizhai.com/" target="_self" title="二层复式设计" style="font-family: 微软雅黑, "Microsoft YaHei"; font-size: 18px;">农村自建房,越来越多的设计花样。欧式风格,田园风格,现代风格,中式风格,新中式风格.......您中意哪款风格呢?
2018年年初。杨总联系到我们轩鼎建筑公司。想回老家把房子拆了重盖,让我们为他设计一款="://www.lemeizhai.com/Picture.asp?PicClassID=88" target="_self" title="两层别墅">两层别墅带有庭院的方案。通过和工作人员以及设计师的沟通,业主喜欢多窗的设计,占地面积是比较大的。如何在占地160平的土地上,设计出一款二层复式带有小院的设计呢?通过几天反复深入沟通。最终业主和方案师敲定了以下方案设计:
图一:一层:客厅、厨房、餐厅、棋牌室、卫生间、卧室(带卫生间)。

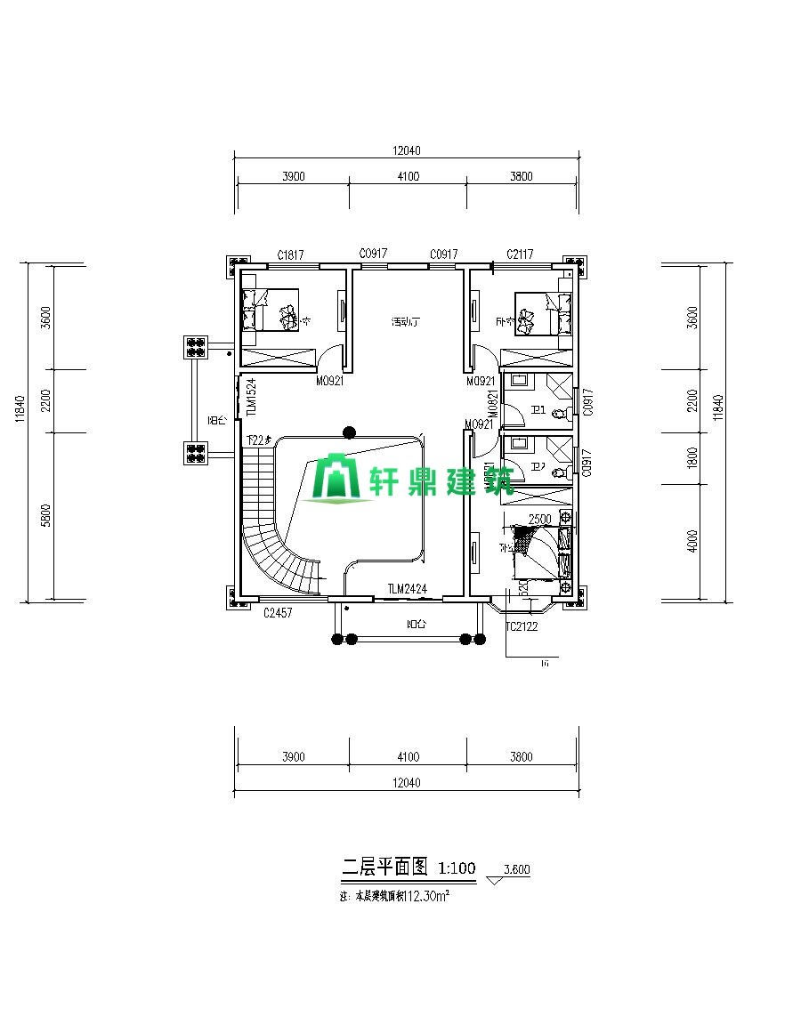
图二:阳台2、卧室2、卫生间、活动厅、卧室(带卫生间)。

两层的复式设计,将二层设计为3.6米,设有多个的卧室。业主平时在外工作,只有节假日的时候带着家人回老家住。满足了一家人的需求。复式的设计,使整个空间更高大上起来!
确认平面方案后,由外观效果图设计师对接接下来的工作。和业主敲定风格 :欧式简约风格。欧式简约风格的特点腰线的丰富性色彩也大多数是以象牙白为主色调,深色为辅。简欧更为清新、也更符合中国人内敛的审美观念。
正面:

侧面:

背面:

此款设计,设计师配搭了红色琉璃瓦,乳白色涂料+乳白色面砖+文化石的设计。前面的四根柱子,显得整个房子的设计更加气派,业主也非常的满意此项设计~
小院的设计:院子中带有凉亭,池塘。以及大面积的绿植。离开城市的喧嚣,回家乡呼吸新鲜空气 放松心情~

设计案例分享:
