在农村,越来越多的人,拆掉一成不变的旧房子,开始盖起新型小洋楼。如今最多的大家选择还是两层别墅设计。面积不需要太大,四五个卧室,能满足一家人的需求,在建造一个小院子,再养一只小狗。那简直就是惬意的生活啊~
此款图纸的设计,13m*12m。是很多业主宅基地的最佳选择。一楼带有老人房以及配有独立的卫生间。方便老人的日常。多窗的设计,采光通透,超高人气小户型!!快来看看我们为业主设计的这款两层别墅方案吧;
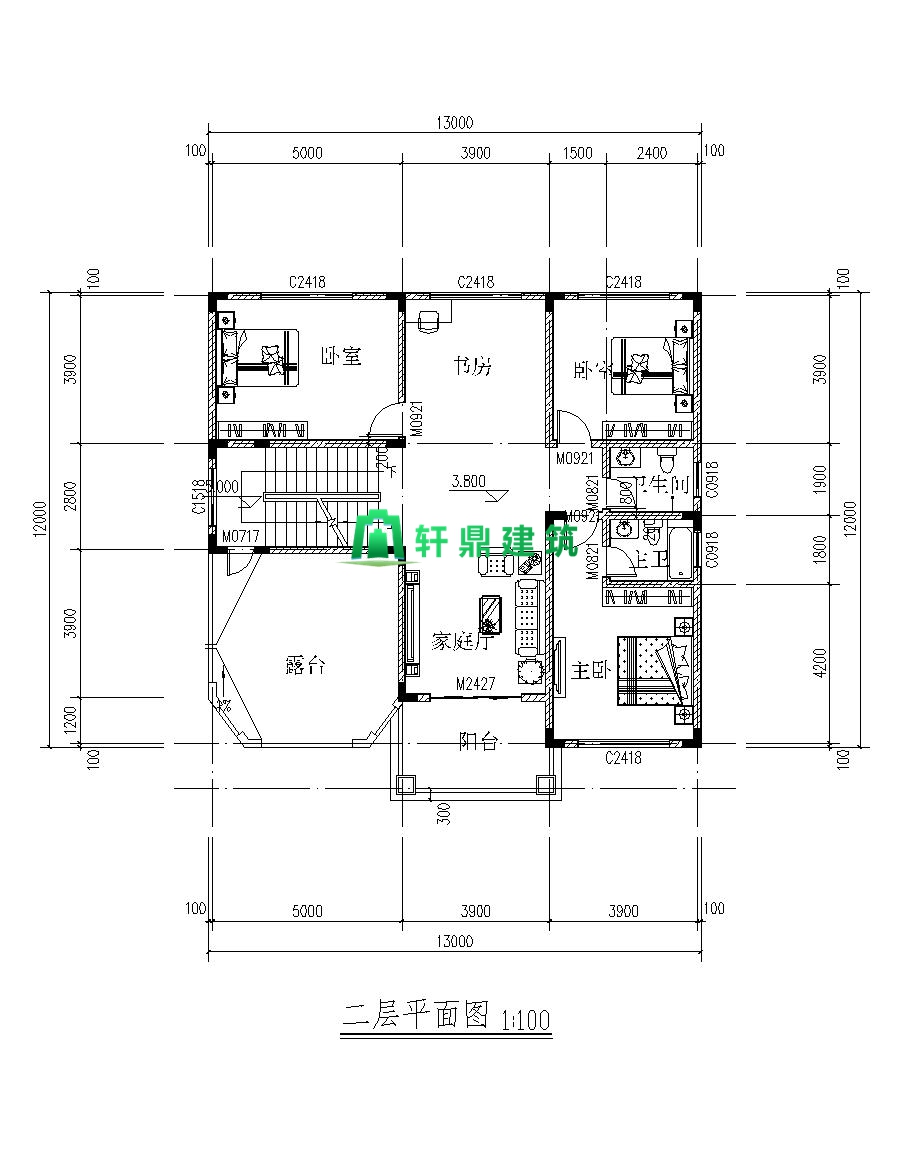
方案布局:
方案二:

在外观效果图的设计上,我们为业主整体采用了暖色调的搭配。让整个别墅的设计看起来十分的温馨。
正面效果图:

此款别墅实景展示:



超大的幕墙设计。这款两层别墅你有没有心动呢。此款实景图分享来自河南业主。